EasyManua.ls Logo

Smith XWH 150 - Closet and Alcove Installations

Smith XWH 150
68 pages
Print Icon
To Next Page IconTo Next Page
To Next Page IconTo Next Page
To Previous Page IconTo Previous Page
To Previous Page IconTo Previous Page
Loading...
12
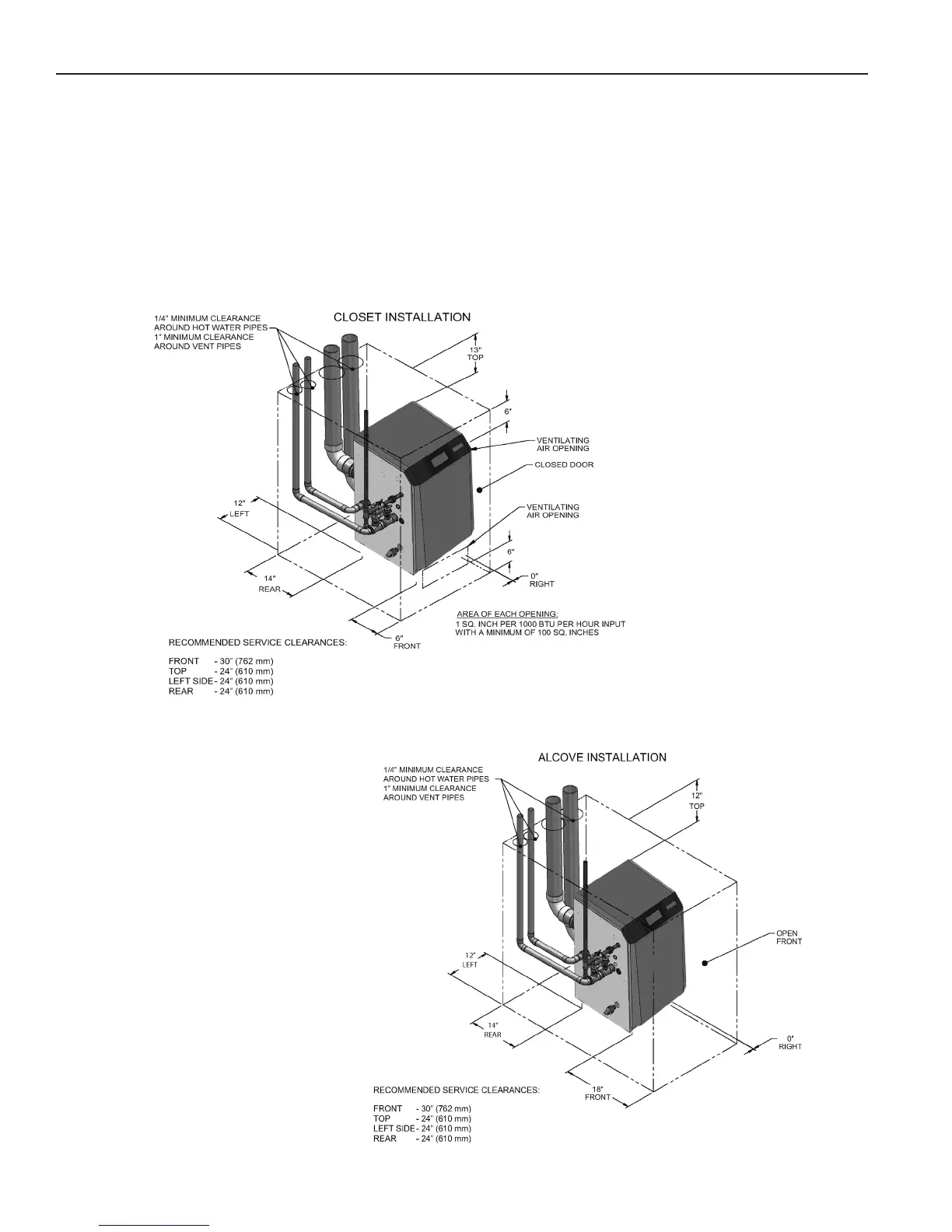
CLOSET AND ALCOVE INSTALLATIONS
A closet is any room the water heater is installed in which is less
than 86 cubic feet for XWH 150 models, 106 cubic feet for XWH
200 models, 120 cubic feet for XWH 285 models, 165 cubic feet
for XWH 400 models, 191 cubic feet for XWH 500 models, 223
cubic feet for XWH 600 models, 247 cubic feet for XWH 700
models and 278 cubic feet for XWH 800 models. An alcove is
any room which meets the criteria for a closet with the exception
that it does not have a door. For closet and alcove installations
as shown in below Figures 2 & 3, CPVC vent material must be
used inside the structure. The ventilating air openings shown in
Figures 2 & 3 are required for this arrangement. Failure to follow
this warning could result in re, personal injury, or death.
PROVIDE CLEARANCES:
Clearances from combustible materials
1. Hot water pipes—at least 1/4" from combustible materials.
2. Vent pipe – at least 1" from combustible materials.
3. See Figure’s 2 and 3 below for other clearance minimums.
Clearances for service access
1. See Figure’s 2 and 3 below for recommended service
clearances. If you do not provide the minimum clearances
shown, it may not be possible to service the water heater
without removing it from the space.
For closet installations, CPVC,
polypropylene or stainless steel
vent material MUST BE used in
a closet structure due to elevated
temperatures. Failure to follow this
warning could result in re, personal
injury, or death.
For alcove installations, CPVC,
polypropylene or stainless steel
vent material MUST BE used in
a closet structure due to elevated
temperatures. Failure to follow this
warning could result in re, personal
injury, or death.
Figure 2. Closet Installation - Minimum Required Clearances
Figure 3. Alcove Installation - Minimum Required Clearances

Table of Contents