EasyManua.ls Logo

Smith XWH 150 - Wiring Diagrams

Smith XWH 150
68 pages
Print Icon
To Next Page IconTo Next Page
To Next Page IconTo Next Page
To Previous Page IconTo Previous Page
To Previous Page IconTo Previous Page
Loading...
64
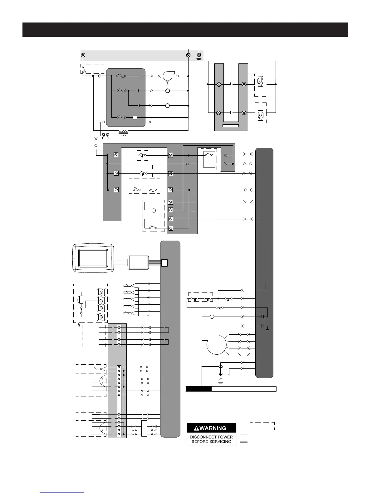
WIRING DIAGRAMS
BOX DEPICTS
OPTIONAL ITEMS
LADDER DIAGRAM
100273400 REV. A
INTEGRATED
CONTROL
X2-1
GAS VALVE
GAS VALVE
RELAY
X5-7
X5-16
X5-8
X5-15
1
2
4
5
TR2
X1-7
FLAME ROD
SPARK
ROD
BLOWER
CONNECTION
BOARD
INLET
SENSOR
OPERATING
SENSOR
FLUE
SENSOR
INTEGRATED
CONTROL
RUN-TIME
CONTACTS
RIBBON CABLE
USER INTERFACE MODULE (UIM)
X7
TANK
SENSOR
0-10V
+
-
CASCADE
A
B
SHIELD
SHIELD
13
6
2
1
SILENCING
SWITCH
ALARM
BELL
S4
BMS
CN6
X6
CN6
X6
CN5-2
X4-6
CN5-9
X4-13
CN5-1
X4-7
CN5-8
X4-14
CN6
X6
CN6
X6
HIGH LIMIT
SENSOR
FLUE
SENSOR
X5-4
X5-12
X5-5
X5-13
X5-14
X5-6
0-10V
+
-
RATE
OUT
IN
MODBUS
A
B
SHIELD
SHIELD
CN6
X6
CN8-1
X6-1
CN8-2
X6-2
CN8-3 X6-3
X4-1
X9-2
X4-2
X9-1
X4-3
X9-3
S2
S1a
S1b
S3a
S3b
16
17
19
20
21
22
23
24
25
26
27
28
29
30
3
4
1
2
ALARM
CONTACTS
CN6
X6
M
O
D
B
U
S
CN6
X6
CN6
X6
X2-2
NOTES:
1. Where possible, switches are shown without utilities (gas, water or
electricity) connected to the unit. As such, actual switch states may
vary from those shown on diagrams depending upon whether utilities
are connected or a fault condition is present.
2. See wiring diagram for additional notes.
LOW VOLTAGE
120 VAC
HIGH VOLTAGE
CN5-5
X4-3
HIGH VOLTAGE SPARK LEADCAUTION
X5-2
X5-11
X5-10
AIR PRESSURE SWITCH
BLOCKED
DRAIN SWITCH
XWH 285-800 ONLY
CN5-12
CN5-11
X4-10
X4-11
LOW GAS
PRESSURE
SWITCH
HIGH GAS
PRESSURE
SWITCH
LOUVER
RELAY COIL
24VAC
LOUVER
PROVING SWITCH
CN5-4
X4-4
CN5-3
X4-5
LWCO
TANK
THERMOSTAT
11
CN5-10
X4-12
CN5-14 X4-8
12
CN7-3
CN7-2
CN7-4
CN7-1
24 VAC
9
6
7
14
13
13
8
7
6
5
10
9
CONNECTION BOARD
120 VAC
24 VAC
120VAC
ON / OFF
SWITCH
X1-6
F2
3.15A
F1
5A
INTEGRATED CONTROL
JUNCTION BOX
X1-1
BUILDING
RECIRC PUMP
RELAY
DHW PUMP
RELAY
24V DC
SUPPLY
F3
.8A
X5-1
X5-9
XWH 800
ONLY
X4-3
X1-3
X1-2
TERMINAL STRIP
120V SUPPLY "N"
3.5A
3
BLOWER
21
BUILDING
RECIRC
PUMP
DHW
PUMP
BUILDING
RECIRC PUMP
RELAY
DHW PUMP
RELAY
NEUTRAL
GROUND
TERMINAL STRIP
120V SUPPLY "L"
L
IN
BUILDING
RECIRC PUMP
CONTACTS
DHW PUMP
CONTACTS
L
OUT
FLOW
SWITCH
JUNCTION BOX
XWH MODELS ONLY
O-TEMP
HEX SW
DOOR TEMP
SW
Figure 79. Ladder Diagram

Table of Contents