EasyManua.ls Logo

Snapper SZ2654 - LUBRICATION SCHEDULE; Grease, Oil, and Level Checks

Snapper SZ2654
72 pages
Print Icon
To Next Page IconTo Next Page
To Next Page IconTo Next Page
To Previous Page IconTo Previous Page
To Previous Page IconTo Previous Page
Loading...
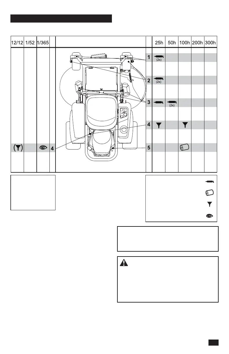
General
Remove the ignition key to prevent unintentional
movements during lubrication.
When lubricating with an oil can, it must be lled
with engine oil.
When lubricating with grease, unless otherwise
stated, use high grade molybdenum disulphide
grease.
For daily use, the machine must be lubricated
twice weekly.
Wipe away excess grease after lubrication.
It is important to avoid getting lubricant on the
belts or the drive surfaces on the belt pulleys.
If this happens, clean them with spirits. If the
belt continues to slip after cleaning, it must be
replaced. Gasoline or other petroleum products
must not be used to clean belts.
12/12 Every year
1/52 Every Week
1/365 Every day
Lubrication Schedule
IMPORTANT INFORMATION Use minimal
lubrication and remove excess lubricant so that
is does not come into contact with belts or belt
pulley drive surfaces.
WARNING! Escaping hydraulic oil
under pressure can have su󰀩cient force to
penetrate the skin, causing serious injury. If
injured by escaping uid, see a doctor at once.
Serious infection or reaction can develop if
proper medical treatment is not administered
immediately.
Lubricate with grease gun
Filter change
Oil change
Level check
27
LUBRICATION

Table of Contents

Related product manuals