EasyManua.ls Logo

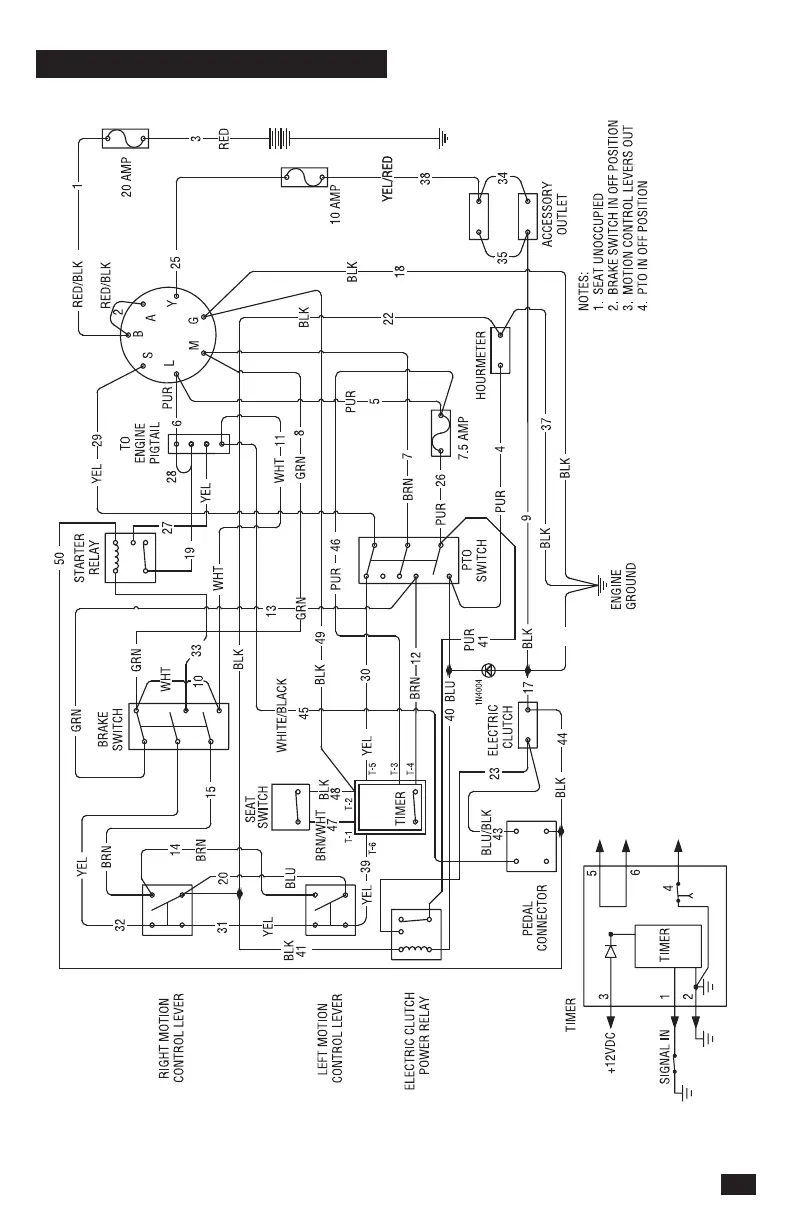
Snapper SZ2654 - WIRING SCHEMATIC; Electrical System Diagram; Connector and Note Key

Snapper SZ2654
72 pages
Print Icon
To Next Page IconTo Next Page
To Next Page IconTo Next Page
To Previous Page IconTo Previous Page
To Previous Page IconTo Previous Page
Loading...
CONNECTOR WIRE/COLOR LOCATION:
1. SEAT INPUT - BROWN/WHITE
2. GROUND - BLACK
3. INGITION POWER - VIOLET
4. MAGNETO - BROWN
5. START INPUT - YELLOW
6. START OUTPUT - YELLOW
31
SCHEMATIC

Table of Contents

Related product manuals