EasyManua.ls Logo

Snorkel S1930 - Placards and Decals

Snorkel S1930
54 pages
Print Icon
To Next Page IconTo Next Page
To Next Page IconTo Next Page
To Previous Page IconTo Previous Page
To Previous Page IconTo Previous Page
Loading...
Placards and Decals
Inspect all safety and operational placards and decals.
Make certain they are in place, in good condition, and
are legible.
The placards and decals may becleaned withsoap and
water, and a soft cloth if the words or pictures cannot be
seen.
Solvents may contain hazardous ingredients. Fol
-
low the manufacturers label forproper use and dis
-
posal. Wear protective gloves and splash-proof
safety glasses when using solvents.
Wet paint overspray may be removed using a natural
biodegradable solvent and a soft cloth.
Replace any missing or illegible placards or decals be-
fore operatingtheaerial platform.Placard and decal kits
are available from Snorkel dealers.
The safety related placards and decals are illustrated
on the following pages.
S1930 – 0361266 8-9
Chapter 8. Prestart Inspection
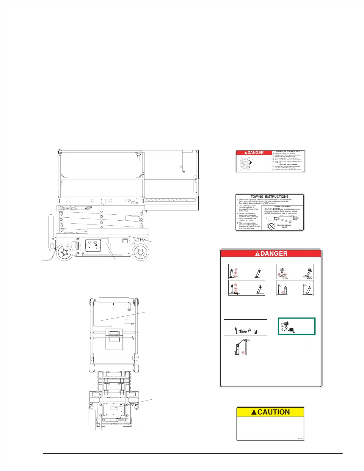
0361259
Right Side
300740
Useawrenchtorotate
the lock-out block to
disengage the rear wheel
brake pin s .
()
2.
Rotate free-wheeling
valve counterclockwise
as shown. Free-wheeling
valve is located on the
main control valve.
3.
After moving machine,
close free-wheeling valve,
and verify that brake resets
after operating drive.
4.
1.
Before towing, pushing, or winching machine must be on level ground.
Read and understand all instructions, refer to Operator's Manual .
Turn battery disconnect switch to "OFF" position.
()
TOWING INSTRUCTIONS
CAUTION: use hydraulic power while
disengaging brake. Brake is spring loaded.
keep hands clear of mechanism.
DO NOT
ALWAYS
DISENGAGE BRAKE
FREE-WHEELING
VALV E
300740
0361259
DANGER
PROPER USE OF SAFETY PROP
TO STORESAFETY PROP
1. Remove all material from platform.
2. Raise platform until the open height is wide
enough to position the safety prop.
3. Place safety prop in the proper position.
4. Remove hands and arms from scissors area.
5. Lower platform until scissors are supported by
safety prop.
1. Raise platform until the open height is wide
enough to position the safety prop.
2. Place the safety prop in the storage position.
0361259
Death or serious injury
might result if safety prop
is not used and/or
properly positioned. Use
safety prop at all times
when servicing machine
with platform raised.
Proper position for safety prop use
300740
475596
CAUTION
475596
THIS CYLINDER IS SPRING LOADED. INCORRECT
ASSEMBLY OR DISASSEMBLY COULD CAUSE
PHYSICAL INJURY. BEFORE REMOVING SNAP
RING, RETRACT CYLINDER ROD .25 INCH.
REMOVE SNAP RING AND SLOWLY EXTEND
CYLINDER ROD UNTIL SPRING PRESSURE IS
RELEASED. ASSEMBLE IN REVERSE ORDER.
Rear
0361258
DEATH OR SERIOUS INJURY CAN RESULT FROM TIPPING OVER.
TO KEEP FROM TIPPING THIS MACHINE OVER FOLLOWTHESE RULES.
OTHER ACTIONS CAN ALSO CAUSE THIS MACHINE TO TIP OVER
NOTE: STUDY THE OPERATOR'S MANUAL
BEFORE OPERATING THIS MACHINE.
0361258
DO NOT
DO NOT
DO NOT
DO NOT
DO NOT
override safety devices.
overload the machine.
stand or sit on guardrails.
attach ropes or chains to guardrails.
carry loads outside the railing or use as
acrane.
DO NOT use this machine without the railings and the
entry gate, chain or bar in place.You could fall
out and hurt or kill yourself.
DO NOT use this machine if it is not working right, or if
any part of it is damaged, worn, or missing. An
accident could cause injury or death.
DO NOT
DO NOT
let an untrained or unauthorized person use this machine.
When you leave the machine unattended, remove the key,
or turn off the battery switch on the base of the machine
and lock the battery switch in the off position.
replace components critical to machine stability, such as
batteries and wheel equipment, with lighter weight or non-
factory approved substitutes.
DO NOT
DO NOT
DO NOT
ride platform while machine is on a truck, fork lift or
other device.
use ladder, scaffold, or other means to increase size
or platform height.
use with improperly inflated or damaged tires or
wheels.
DO NOT RAISE OR DRIVE AN ELEVATED
PLATFORM ON
SOFT OR UNEVEN
SURFACES
DO NOT RAISE OR DRIVE AN ELEVATED
PLATFORM ON A
SLOPE
GO NO CLOSER THAN 4 feet (1.2m)
to
ANY
DROP OFF
OR HOLE
4FT
OK
1.
3.2.
ALARM MEANS TIPOVER DANGER!
LOWER PLATFORM IMMEDIATELY
TO AVOID
TIPOVER HAZARDS
USE ON
FLAT, LEVEL, AND
SOLID SURFACES
ONLY
4FT
OK
ELECTRICAL SHOCK CAN KILL YOU
This machine is not electrically insulated. Maintain 10 feet minimum clearance
from electrical power lines and apparatus.
Allow for platform sway, rock, or sag. If voltage is 300 V to 50 kV stay at least 10
feet (3.1m) away. If voltage is more than 50 kV talk with your supervisor or read
the Operator's Manual on this machine for safe distances.
This machine will not protect you from shock.
DO NOT RAISE THE PLATFORM
OUTDOORS OR IN THE WIND
FOR INDOOR
ELEVATION ONLY
0361258
475596
ACAUTION

Table of Contents

Related product manuals