EasyManua.ls Logo

SolaStat SolaStat-Plus - SolaStat-Plus Operation; Connect the Pump; Connect the HWC output; Basic SolaStat-Plus-1 Installation

SolaStat SolaStat-Plus
20 pages
Print Icon
To Next Page IconTo Next Page
To Next Page IconTo Next Page
To Previous Page IconTo Previous Page
To Previous Page IconTo Previous Page
Loading...
SolaStat-Plus Operation.
Connect the Pump.
Plug in the pump to the ‘PUMP’ socket on the SolaStat-Plus. This should be the correct type of pump for
domestic solar hot water circulation and not exceed the horse power (hp) rating as specified on the label on
the side of the enclosure.
Connect the HWC output. (SolaStat-Plus-2 Only.)
Note: This Requires the use of the SolaStat-Rly slave relay module.
Plug in the SolaStat-Rly to the ‘HWC’ socket on the SolaStat-Plus labeled ‘AUX’ on the enclosure.
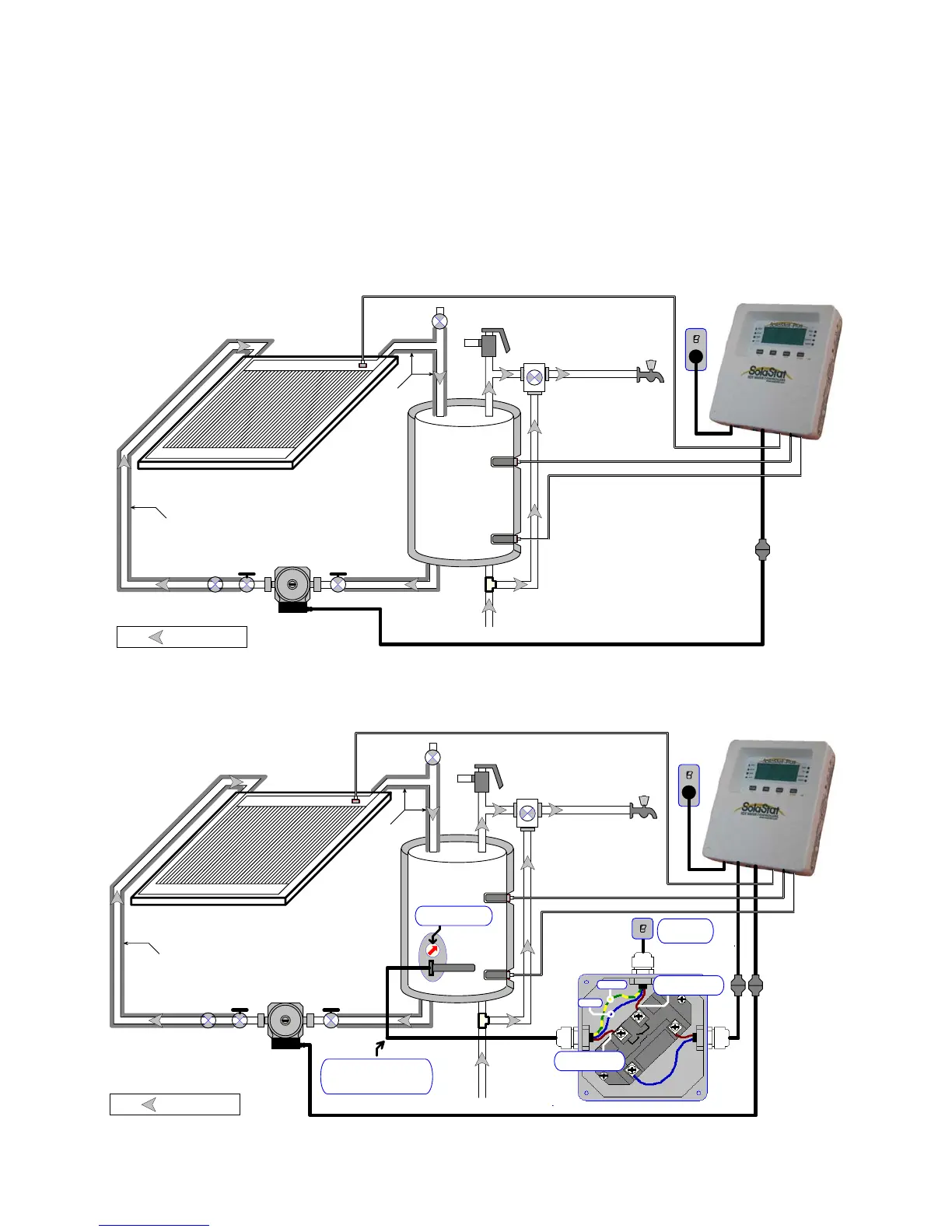
Basic SolaStat-Plus-1 Installation.
The SolaStat-1 controlling the Solar Collector circulating pump.
19.01-9
Note. These diagrams are only to be used as a general guide and not all the required components are
shown. Each installation needs to be customised to suit its situation. Always use best plumbing and electrical
practices, and comply to any regulatory requirements.
Basic SolaStat-Plus-2 Installation.
The SolaStat-2 controlling the Solar Collector circulating pump and the SolaStat-Rly Relay Module.
.
.
INSULATION
COLD FLOW TO PANEL
TANK SENSOR
HOT WATER OUT
DIFFERENTIAL CONTROLLER
INLET SENSOR
ROOF SENSOR
TEMPERATURE/PRESSURE
TEMPERING
VALVE
KEY: = WATER FLOW.
RELEASE VALVE
COLD WATER INLET
SOLAR COLLECTOR
COLD WATER IN
RECIRCULATING PUMP
HEATING
HWC
ELEMENT
ELECTRIC
HOT RETURN
NON-RETURN
VALVE
AIR
VENT
VALVE
FROM PANEL
INSULATION
PRE-WIRED
SOLASTAT-RLY
PLUGS &
SOLASTAT-PLUS-2
THERMOSTAT
TURNED TO MAX
LEADS
SWITCH
NEUT
EARTH
Phase (Brown)
to HWC Switch
Phase (Brown)
to Element
WIRES TO HWC
MUST BE HIGH
TEMPERATURE TYPE
30A MAX
240Vac
.
.
INSULATION
COLD FLOW TO PANEL
TANK SENSOR
HOT WATER OUT
DIFFERENTIAL CONTROLLER
INLET SENSOR
ROOF SENSOR
TEMPERATURE/PRESSURE
TEMPERING
VALVE
KEY: = WATER FLOW.
RELEASE VALVE
COLD WATER INLET
SOLAR COLLECTOR
COLD WATER IN
RECIRCULATING PUMP
HOT RETURN
NON-RETURN
VALVE
AIR
VENT
VALVE
FROM PANEL
INSULATION
PRE-WIRED
PLUGS &
SOLASTAT-PLUS-1
LEADS