EasyManua.ls Logo

Solplanet LT Series - Page 80

Solplanet LT Series
102 pages
Print Icon
To Next Page IconTo Next Page
To Next Page IconTo Next Page
To Previous Page IconTo Previous Page
To Previous Page IconTo Previous Page
Loading...
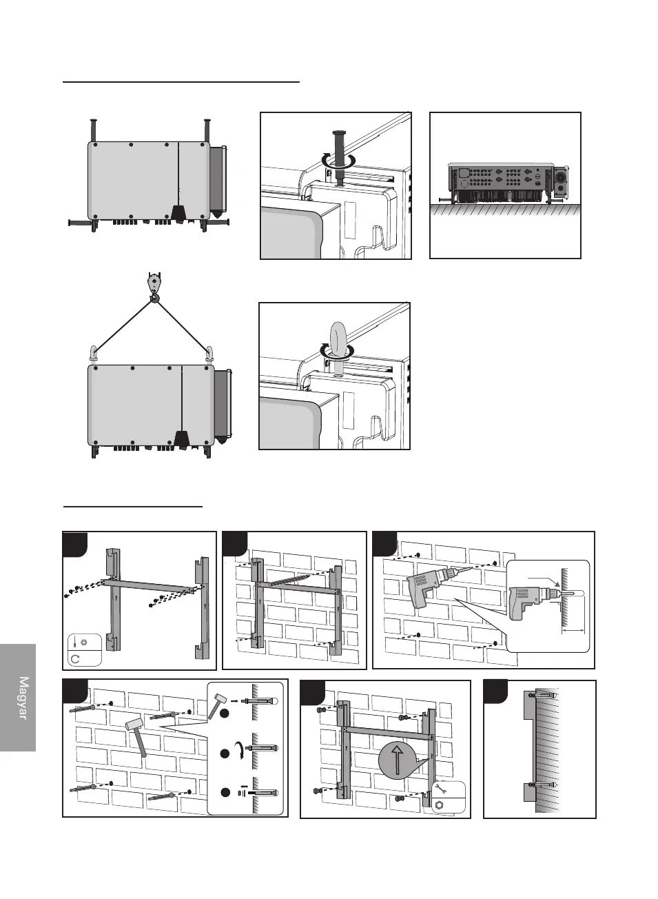
8.2 Az inverter mozgatása (opcionális)
8.3 Rögzítőkonzol
1
2
3
90°
M4
1.6N.m
19mm
45N.m
1
2
3
4
5
6
4-Φ12
65mm
78
QG0040_ASW75-110k-LT_EU_1122

Related product manuals