EasyManua.ls Logo

Sony HCD-RX77S - Leaf SW Section Diagrams; Printed Wiring Board (Leaf SW Section); Schematic Diagram (Leaf SW Section)

Sony HCD-RX77S
86 pages
Print Icon
To Next Page IconTo Next Page
To Next Page IconTo Next Page
To Previous Page IconTo Previous Page
To Previous Page IconTo Previous Page
Loading...
HCD-GRX7/GRX7J/R700/RX77/RX77S
(Page 55)
MAIN BOARD
CN107
(Page 61)
MAIN BOARD
CN107
53
54
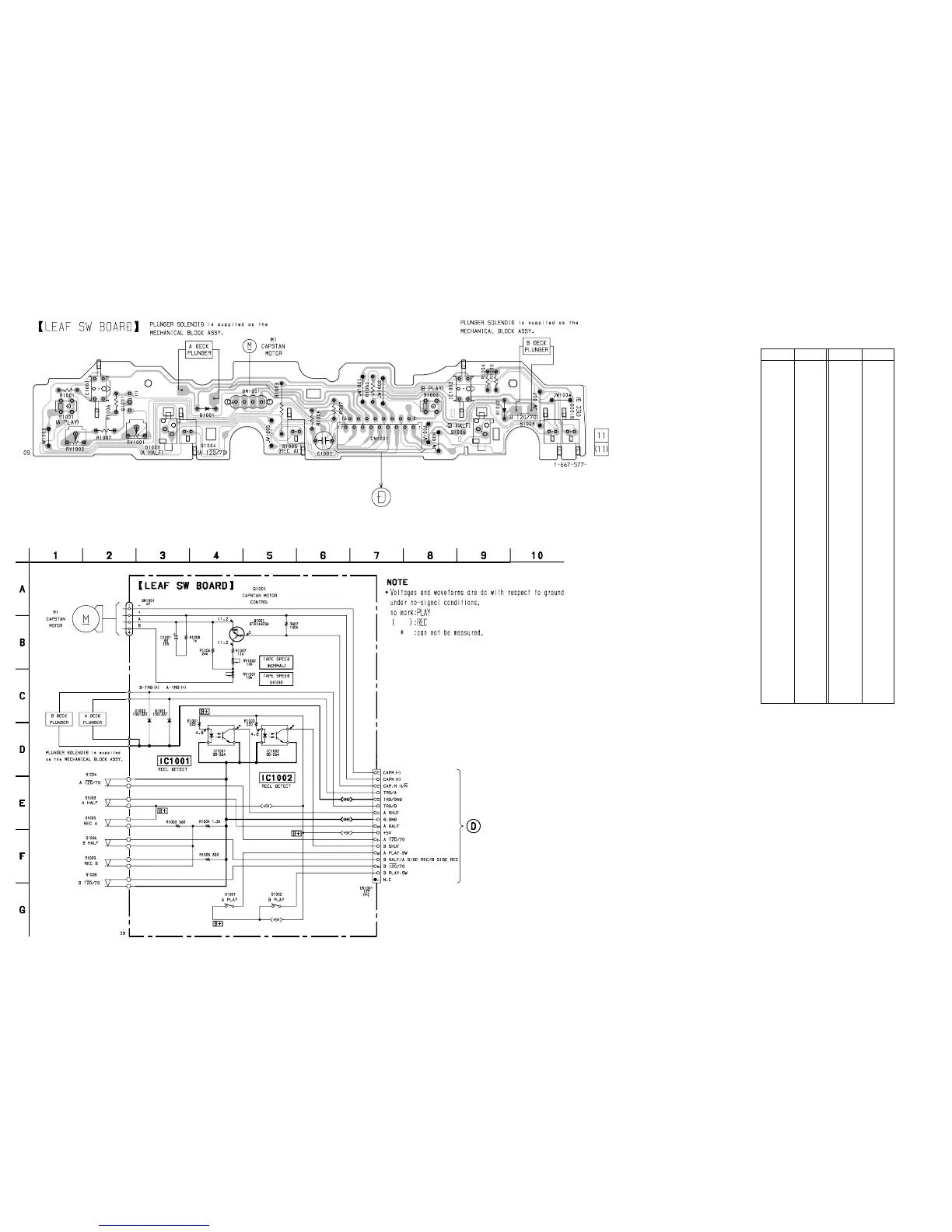
7-17. PRINTED WIRING BOARD – LEAF SW Section – See page 20 for Circuit Boards Location. • See page 33 for Note on Printed Wiring Boards.
7-18. SCHEMATIC DIAGRAM – LEAF SW Section – • See page 33 for Note on Schematic Diagram.
Ref. No. Location
Ref. No. Location
Semiconductor Location
D141 G-9
D401 G-10
D403 F-11
D404 F-11
D405 F-10
D406 F-11
D407 F-11
D501 E-5
D502 E-5
D503 E-5
D504 E-5
D505 E-6
D506 E-6
D507 F-3
D508 F-2
D901 I-6
D902 I-5
D903 I-6
D904 I-6
D905 G-6
D906 G-7
D907 H-4
D908 H-4
D909 I-5
D910 I-4
D911 I-4
D912 I-4
D913 G-3
D914 G-5
D915 I-3
IC101 D-9
IC102 F-10
IC191 D-11
IC301 B-2
IC381 A-11
IC501 D-4
IC502 E-6
IC901 G-5
IC902 G-3
IC903 H-3
Q111 F-9
Q112 F-9
Q113 H-8
Q161 E-8
Q162 D-8
Q163 H-8
Q191 D-11
Q331 C-2
Q332 D-2
Q333 C-2
Q334 D-2
Q335 C-1
Q336 E-2
Q337 E-2
Q338 F-2
Q339 F-2
Q340 E-2
Q341 E-2
Q342 E-2
Q343 E-2
Q401 E-11
Q402 E-11
Q431 G-9
Q432 H-8
Q433 H-9
Q434 H-8
Q435 H-8
Q436 G-8
Q437 G-8
Q501 E-7
Q571 E-6
Q572 E-6
Q575 F-8
Q901 F-6
Q902 G-6
Q903 H-6
Q905 F-6
Q906 G-6
Q907 G-4
Q908 G-5
Q909 H-4
Q910 I-4
Q913 G-6
Q914 F-7
Q951 G-7
Q952 G-7

Table of Contents

Related product manuals