EasyManua.ls Logo

Sony HDR-FX7 - Power Block Diagram (4;4)

Sony HDR-FX7
117 pages
Print Icon
To Next Page IconTo Next Page
To Next Page IconTo Next Page
To Previous Page IconTo Previous Page
To Previous Page IconTo Previous Page
Loading...
3-12E
HDR-FX7/FX7E_L2
AU_4.6VAU_4.6V
CN5401
12
26
21
CN5403
8
25, 26
DRUM/CAPSTAN/
LOADING
MOTOR DRIVE
(2/2)
IC5402
SENSOR_VCC
17
VH
MR_VCC
3
VMR
Q3604 - Q3606
Q5402
CHIME_VDD
HE_VCC
HALL_VCC
FG_VCC
TAPE_LED_A
HU, HV, HW
CAPSTAN FG
MIC903
4PIN
CONNECTOR
D902
(TAPE LED)
H901
S REEL
SENSOR
H902
T REEL
SENSOR
N MECHANISM DECK
(MDX-N110)
L5401
L5402
34 XRESET
XRST_VTRXRST_VTR
OO-003 BOARD
FP-501 FLEXIBLE
BOARD
FP-492
FLEXIBLE
BOARD
FP-484 FLEXIBLE
BOARD
FP-497
FLEXIBLE
BOARD
GG-003 BOARD
PP-003 BOARD
18
CN9003
VDD
CN9005
XSTBY 10
LCD901
LCD DRIVE
IC9002
Q9007, Q9009
3.5 TYPE
WIDE
COLOR
LCD UNIT
RR-003 BOARD (2/2)
8
CN9606
9
10
UU-003 BOARD
1
CN8602
CN6603CN6602CN1012
CN8601
18, 1721, 20
CN4001
10, 117, 8
17, 18
77, 79
76, 78
14, 15
EVF_13.5V EVF_13.5V
EVF_4.9V
EVF_13.5V
EVF_4.9V
A_4.6V
A_4.6V
EP_13V
72, 74
71, 73
EP_2.8V
78, 80
77, 79
MT_5V
43, 45
42, 44
2, 4
1, 3
A_4.6V
MT_5V
COLOR
EVF UNIT
D8601
(EVF BACKLIGHT)
LCD902
EVF DRIVE
(1/2)
IC6601
TIMING GENERATOR
(1/2)
IC6602
FP-494
FLEXIBLE
BOARD (2/2)
TT-003 BOARD (4/4)
12
CN1007
(2/2)
13
14
EP_8.5V
EP_2.8V
BL_CONT
EP_4.6V
BL_V (+13V)
EP_8.5VEP_8.5V
EP_2.8VA_2.8V
EP_4.6VA_4.6V
15
14
13
CN9601
(2/2)
34
33
32
15
VSSG
14
XSTBY
SWITCH
Q9008
REMOTE
SENSOR
(BACK)
IC4001
4
5
XRST_VTR
4948
L5202
L5201
IC5202
REC/PB AMP
(1/2)
CAPSTAN/DRUM
PWM DRIVE
(2/2)
IC5002
IC5001
RP_2.8V
RP_4.6V
FP-491
FLEXIBLE
BOARD
NN-003 BOARD
CN5001CN1009
68, 66
12, 14
69, 67
11, 13
11, 9
69, 71
D_2.8V
05
D_2.8V
7, 5
73, 75
VTR_UNREGVTR_UNREG
10, 8
70, 72
MT_5VMT_5V
XREEL_HALL_ON
48
XREEL_HALL_ON
32
CHIME_VDD
5228
EP_13.5V
A_2.8V
EP_13.5V
1367
EVER_3.0V
RP_4.6V
EVER_3.0V
1565
DD_6.5V
DD_6.5V
DD_6.5V
1268
2753
FB9001
L8601
L6603
L6605
L6602
L9001
L9002
L9003
39
3 207
BL_-V (-15V)
BL_CONTBL_CONT
BL_V (+13V)EP_13V
BL_-V (-15V)BL_-15V
41
1 225
40 26
XSTBY 25
XP.SAVE 45
XCLR36
Q6601, Q6602
Q6605, Q6606
PSIG
DRIVE
5, 61, 2
CN9004
EXTDA
PWM
BACKLIGHT
DRIVE
Q9003 - Q9006
18
31
21
BL_L
BL_H
D901
BACKLIGHT
CN6601
34, 35
A_4.6V
1 - 3
AU_4.6V
CN8205
6, 5
A_4.6V
FP-498 FLEXIBLE
BOARD
A_4.6V
37 - 35
MM-061 BOARD
CN8303
CN8304
5, 6
CN8202
3 19
27 - 30
AU_4.6V AU_4.6V
AMP
(2/2)
IC6604
MIC LEVEL
CONTROL
(2/2)
INT/EXT
MIC-L
SELECT
IC6603
VOLTAGE
FOLLOWER
(2/2)
IC6605
L8201
L8301
4.3V REG
Q8201
VoutVdd
2.8V REG
IC8210
4 3
IC8207
INT/EXT
MIC-R
SELECT
IC8206
MIC AMP
IC8203
REVERSE
AMP
IC8209
REVERSE
AMP
IC8202
VOLTAGE
FOLLOWER
IC8205
FP-481 FLEXIBLE BOARD
A_4.6V
REMOTE
SENSOR
(FRONT)
IC101
4
2
REVERSE
AMP
IC8304
LPF/AMP
IC8303
LPF/AMP
IC8302
VOLTAGE
FOLLOWER
IC8301
CHIME_PWR_CONT
POWER (1/4)
(PAGE 3-9)
D
POWER (2/4)
(PAGE 3-10)
E
D4002
REC LAMP
(BACK)
D101
REC LAMP
(FRONT)
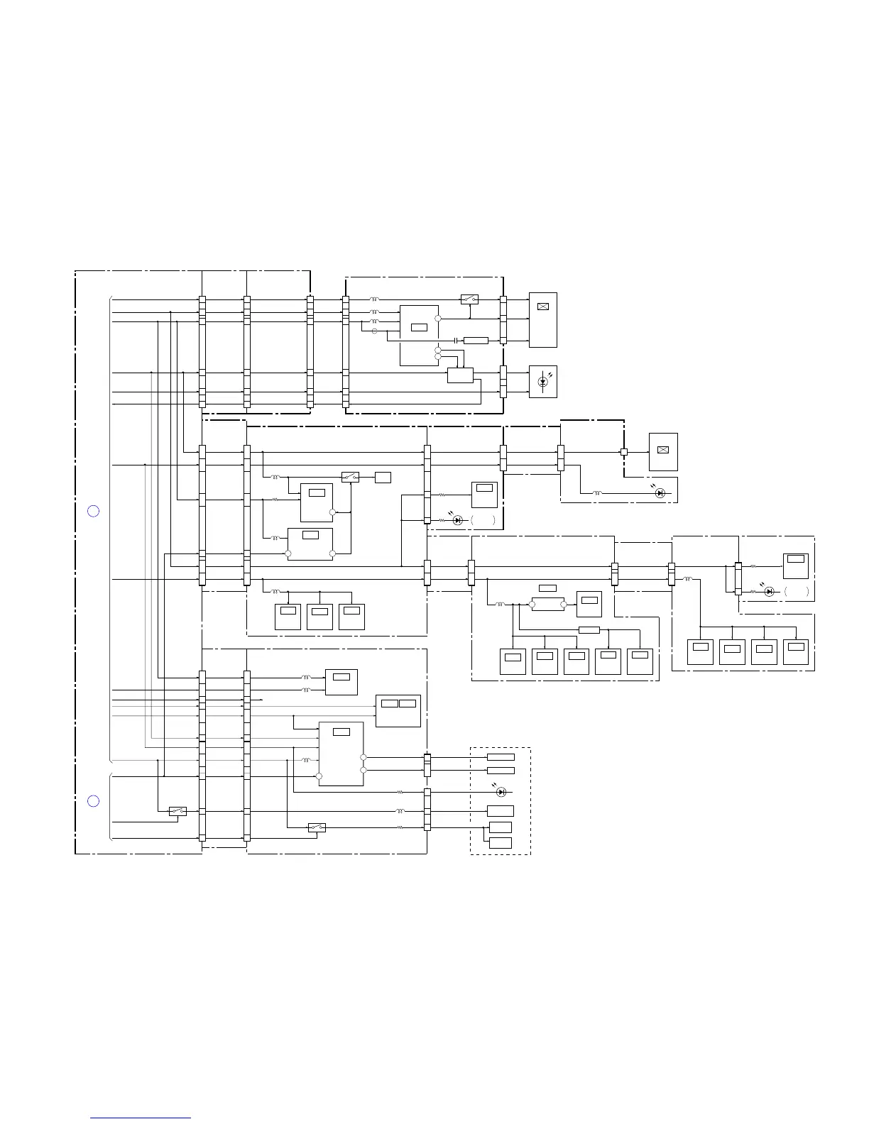
3-12. POWER BLOCK DIAGRAM (4/4)
( ) : Number in parenthesis ( ) indicates the division number of schematic diagram where the component is located.

Related product manuals