EasyManua.ls Logo

Sony HDR-SR1 - Overall Block Diagram (4;5)

Sony HDR-SR1
90 pages
Print Icon
To Next Page IconTo Next Page
To Next Page IconTo Next Page
To Previous Page IconTo Previous Page
To Previous Page IconTo Previous Page
Loading...
3-5
HDR-SR1/SR1E_L2
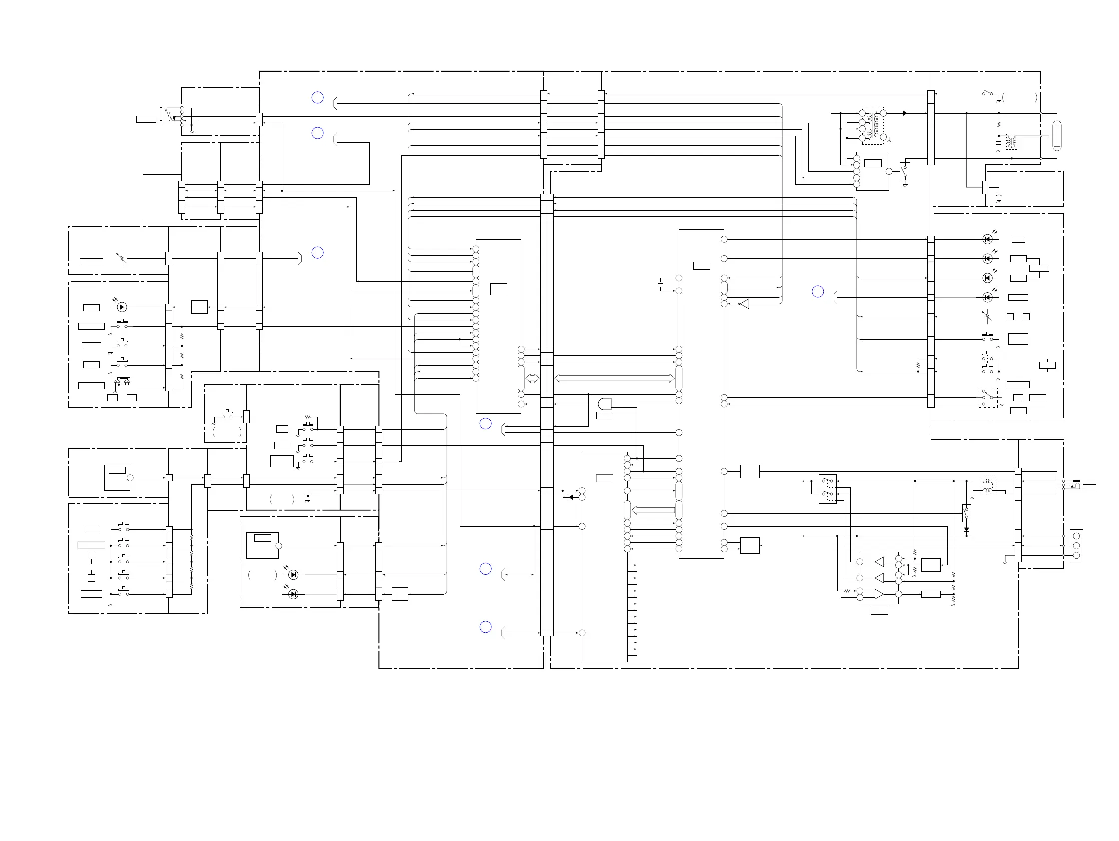
3-5. OVERALL BLOCK DIAGRAM (5/5)
( ) : Number in parenthesis ( ) indicates the division number of schematic diagram where the component is located.
CN5503
(3/3)
CN1004
(3/3)
FP-465
FLEXIBLE
BOARD
SIRCS_SIG
XTALLY_LED
IR_LED_ON
XSYS_RST
SYS_V
XEX_RST
SYS_V
XSYS_RST
1
CN1002
3
5, 6
RV040, RV041
CAM CTRL
D7201
FLASH
S7201
MANUAL
CONTROL SWITCH BLOCK
(MF20000)
FP-469 FLEXIBLE BOARD
FR-256 BOARD
CONTROL SWITCH BLOCK (PS20100)
FP-471
FLEXIBLE
BOARD
MD-133 BOARD (2/2)
FP-477 FLEXIBLE BOARD
STROBE FLASH UNIT (FL20000)
LD-226 BOARD
(3/3)
VC-456 BOARD (5/5)
FP-464
FLEXIBLE
BOARD (3/3)
3, 4
38, 37
8, 9
MF_A, MF_B
ST_CHR_LED
STRB_CHG_LED
BACK_LIGHT
SIRCS_SIG
KEY_AD3
MF_A, MF_B
CN5104
4
6
CN5103
CN5105
(3/3)
CN1009
(3/3)
OVERALL (1/5)
(PAGE 3-1)
2
OVERALL (4/5)
(PAGE 3-4)
11
XMS_IN XMS_IN
OVERALL (4/5)
(PAGE 3-4)
12
OVERALL (1/5)
(PAGE 3-1)
1
OVERALL (1/5)
(PAGE 3-1)
3
F_TALLY_LED
NS_LED_K
D003
PHOTO
XPHOTO_LED
13
CN4010
2
40
39
6
7
S7204
BACK LIGHT
CAMERA_CTL
1
S7203
FLASH
OFF ONT
W T
PHOTO
y
S7202
RV001
(ZOOM)
NIGHTSHOT
J8101
REMOTE
S002
S004
(PHOTO FREEZE)
START/
STOP
STROBE_SW
NIGHT_SHOT
3
7
1
CN5901
3
5, 6
KEY_AD0 (SS)
17
CAMERA
PHOTO_FREEZE
S003
(PHOTO REC)
16
CN001
6 – 8
CN4001
4
9
D002
MOVIE
XCAM_LED
5
2
D001
CHG
J7401
DC IN
ON POWER
MODE
OFF (CHG)
r
r
XCHARGE_LED
ACV_UNREG
ACV_GND
BATT/XEXT
ADAPTOR_DETECT
D004
ACCESS
HDD_ACCESS
6
KEY_AD2 (PHOTO)
19
XPOWER_SW
18
CN4011
22
1
9 – 14
23 – 28
2 – 7
16 – 21
XMODE_SW
ZOOM_VR
XPHOTO_LED
HDD_ACCESS
KEY_AD0
KEY_AD0KEY_AD0
XCAM_LED
CHARGE_LED
KEY_AD2
XPHOTO_LEDXPHOTO_LED
XPOWER_SW
XMODE_SW
ZOOM_VR_AD
ZOOM_VR_ADZOOM_VR_AD
Q5101
LED
DRIVE
Q1001
LED
DRIVE
Q4902
DC PLUG
DETECT
Q4610
EVER_3.0V
CHARGE
CONTROL
Q4607
Q4608
LIMITER
Q4903
S001
LENS ADAPTER
DETECT
XENON
LAMP
XE_H
XE_L
Trigger
XE_A
XE_K
L0001
+
C001
CHARGING
CAPACITOR
16 – 186 – 8
4
REMOTE
COMMANDER
RECEIVER
IC5901
HI CONTROL
(1/5)
IC4901
COMPARATOR
(3/5)
IC4604
DC CONTROL,
RESET,
LANC DRIVE
(4/5)
IC4701
D5902
CAMERA
RECORDING
D5903
(NIGHTSHOT)
S7801
PANEL
OPEN/CLOSE
+
BT7401
BATTERY
TERMINAL
S
BATT_UNREG
BATT_SIG
BATT/XEXT
BATT_SIG
INIT_CHARGE_ON
JIG_UNREG,
SHOE_UNREG,
ST_UNREG,
VTR_UNREG,
VTR2_UNREG,
DRV_UNREG,
MT_BL_UNREG
A_1.2V, D_1.2V, IC_2001_D_1.2V
D_1.5V
EP_2.8V, A_2.8V, AU_2.8V, D_2.8V
A_4.6V, AU_4.6V, EP_4.6V
D_1.8V, SD_1.8V
D_3.3V
D_2.5V
REG_3.3V
MT_5.0V
CMOS_4.1V
BL_V
BL_-V
EP_8.5V
XLANC_DC
EVER_3.0V
BATT_UNREG
FP-523 FLEXIBLE BOARD
(2/2)
CN1011
(2/2)
XLANC_JACK_IN
LANC_SIG
LANC_JACK_IN
LANC_SIG
LANC_SIG
BL_CONT
OVERALL (3/5)
(PAGE 3-3)
10
LANC_SIG
2
3
HOT SHOE
(2/2)
CN9001 (2/2)
EXT_STROBE
HOTSHOE_ID1, HOTSHOE_ID2
FP-461
FLEXIBLE
BOARD
(2/2)
FP-476 FLEXIBLE
BOARD
FP-460
FLEXIBLE
BOARD
(2/2)
CN1003
(2/2)
SHOE_CONT
CN7001
(2/2)
12
14
13
11
13
7, 10
8, 11
9, 6
12
5
3
4
CONTROL SWITCH BLOCK
(SB20100)
FP-478 FLEXIBLE BOARD PD-291
BOARD (2/2)
FP-463
FLEXIBLE
BOARD (2/2)
FP-522
FLEXIBLE
BOARD
(3/3)
FP-475
FLEXIBLE
BOARD
CK-164 BOARD (3/3)
2
4
5
4
1
CN5702
CN5706
CN5701
(2/2)
CN5502
(2/2)
DVD_Burn
2ndZOOM_W
2ndS/S
HOME
CN5504
1, 2
15
37
18
8
12
39
KEY_AD5
KEY_AD1
KEY_AD5
BATT_LI_3V
G2
AH35
AM34, AM33
A22, B22, C22, D22
E1, D1, D2, E2A5, H4, H9C1, D3, H1
M13, L13, K13
B3
B9
IC7901
PANEL
REVERSE
DETECT
5
KEY_AD4
3
2ndZOOM_T
START/STOP
S001
Disc Burn
S005
N
S5503
9
RESET
S5501
7
HI_XRESET
XBATT_VIEW
BATT_LI_3V
HI_XRESET
DISP/
BATT INFO
S5504
HOME
S004
S002
S003
(ZOOM)
W
T
25
3
BT9001
LITHIUM
BATTERY
22
28
CN1005
(2/2)
74
CN4006
(2/2)
74
XFLASH_RST
K4
A3
C2
D14
R1
K3
R2
B5
J1
FAST_CHARGE
H2
G2
2
1
14
8
3
12
13
10
9
G1
N7
N5
B8
C4
C6
A6
E8
B4
B684 84
42
42
88
88
81
81
92
92
5
HOTSHOE_ID1,
HOTSHOE_ID2
AA1, AA4
H8, G8
BOOT_MODE_PORT0,
BOOT_MODE_PORT1
BOOT_MODE_PORT0, BOOT_MODE_PORT1
BOOT_MODE_PORT0,
BOOT_MODE_PORT1
KEY_AD0
AH34
KEY_AD1
AJ35
KEY_AD2
AH33
KEY_AD3
AG34
KEY_AD4
AF34
KEY_AD5
AJ33
ZOOM_VR_AD
L19
XSTRB_FULL
Y3
SIRCS_SIG
D30
IR_LED_ON
AK3
XPHOTO_LED
AM5
XTALLY_LED
AN5
STRB_CHG_LED
AP9
ADAPTOR_DET
AN10
SHOE_CONT
R28
STRB_CHARGE
U25
STABLE_RUN
V2 C9
76 76
WD_DIS
G23
D9
86 86
XHOT_STBY
VTR_DD_ON
D7P3
HI_XRESET
F3J3
LANC_IN
F2J2
LANC_OUT
M2
VOUT
E9M3
XLANC_ON
A8L3
XLANC_PWR_ON
A9N2
BATT_IN
A1
P14
LD0_ON
H19
C8
80
70, 68, 66, 64
70, 68, 66, 64
80
5
7
7
8
8
85
85
KEY_AD2
KEY_AD0
XPHOTO_LED
ZOOM_VR_AD
KEY_AD2KEY_AD2
83
83
82
82
32
1
31
33
CN4015
1
CN4015
1
2
1
4
7
8 6
FLASH
CONTROL
(2/5)
IC5001
Q5001
D5002
T5001
ST_UNREG
5
62
1
4
3
4
3
2
4
5, 6
5, 6
3
99
XBATT_VIEW
77
XMS_IN
XLANC_JACK_IN
BOOT_MODE_PORT0,
BOOT_MODE_PORT1
XBATT_VIEW
88
2
XMS_IN
ADAPTOR_DETECT
XLANC_JACK_IN
BOOT_MODE_PORT0,
BOOT_MODE_PORT1
XBATT_VIEW
STRB_CHARGE
XSTRB_FULL
ADAPTOR_DETECT
XBATT_VIEW
STRB_CHARGE
XSTRB_FULL
STROBE_ON
STRB_CHARGE
XSTRB_FULL
STROBE_ON
STROBE_ON
1
3
4
IC4904
(1/5)
FR_SCK, FR_SI, FR_SO, XCS_EX
HI_EVER_SO,
HI_EVER_SCK,
XCS_DD
LF4601
Q4603,
Q4604
D4601
Q4901
BATTERY
CHARGE
DETECT
D4702
J5
J4
X4901
32.768kHz
IC1601
(5/5)
CPU
(HI CONTROL)
(5/17)
(6/17)
05
OVERALL (2/5)
(PAGE 3-2)
4

Related product manuals