EasyManua.ls Logo

Sony MEX-BT4100E - Page 65

Sony MEX-BT4100E
76 pages
Print Icon
To Next Page IconTo Next Page
To Next Page IconTo Next Page
To Previous Page IconTo Previous Page
To Previous Page IconTo Previous Page
Loading...
MEX-BT4100E/BT4100P/BT4100U/BT4150U
MEX-BT4100E/BT4100P/BT4100U/BT4150U
77
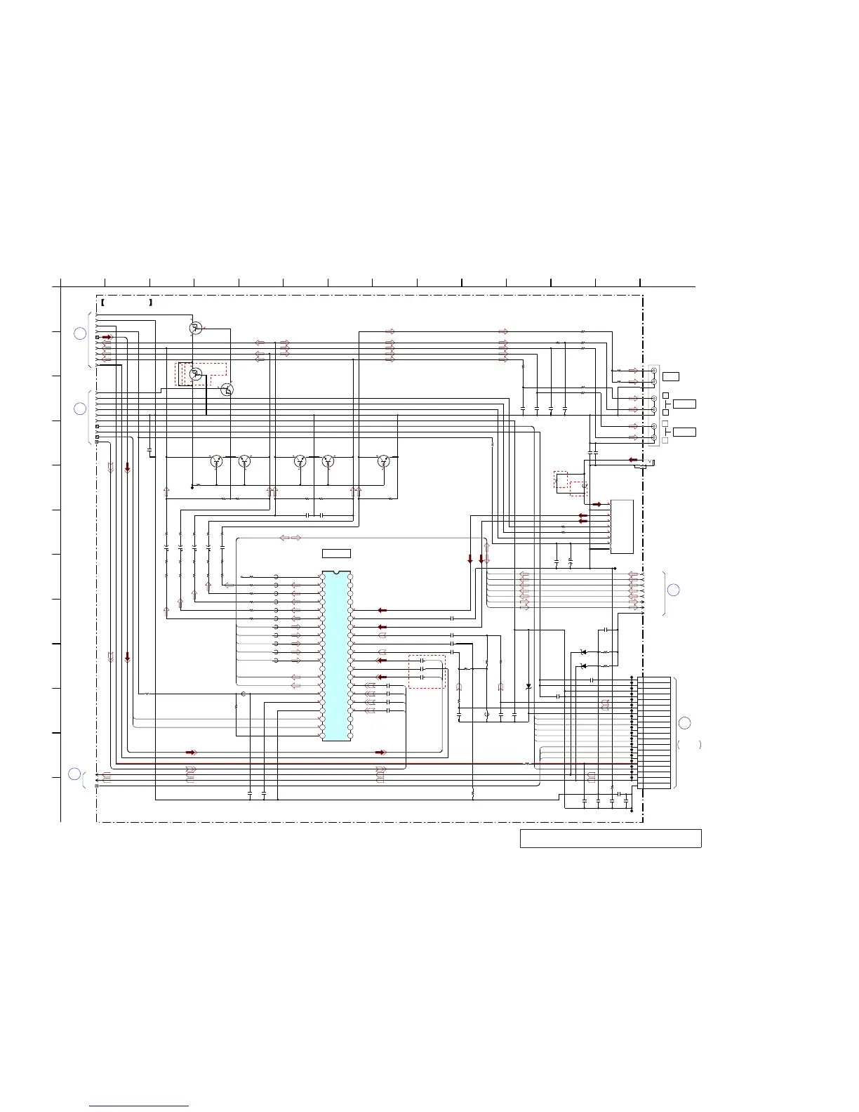
2-5. SCHEMATIC DIAGRAM - MAIN Board (2/5) -
(3/5)
BOARD
4
MAIN
BOARD
1
(1/5)
MAIN
(4/5)
BOARD
5
MAIN
KEY
CN901
BOARD
A
8
(5/5)
BOARD
MAIN
13.8
0
000
4.2
8.4
4.2
3.3
3.3
8.4
0
4.2
4.2
3.3
2.5
2.3
8.4
00
13.8
13.8
4.2
4.2
4.2
4.2
00000
0
0
0
4.2
4.2
4.2
4.2
4.2
4.2
4.2
4.2
4.2
4.2
4.2
4.2
4.2
4.2
4.2
4.2
4.2
4.2
4.2
4.2
4.2
40
39
38
37
36
35
34
7
6
5
4
3
2
1
33
32
30
31
8
27
28
29
9
10
11
12
13
14
24 17
25
26
23
22
21 20
19
18
15
16
BD3467FV-E2
IC401
BUS_LCH
BUS_RCH
NCO
NCO
TU_LCH
TU_GND
TU_RCH
AUX_LCH
AUX_GND
AUX_RCH
XM_LCH
XM_GND
XM_RCH
FP1
FN1
FN2
FP2
NCO
NCO
NCO
MUTE
I2C_SCL
I2C_SDA
GND
FIL
VCC(8.5V)
AU_OUT_RCH
AU_OUT_LCH
NCO
AU_IN_SUB
AU_IN_RL
AU_IN_RR
AU_IN_FL
AU_IN_FR
AU_OUT_FR
AU_OUT_FL
AU_OUT_RR
AU_OUT_RL
AU_OUT_SR
AU_OUT_SL
1k
R415
2.2k
R419
12k
R418
1k
R416
1
C436
1
C437
C100
0.1
0
R116
R425
0
12k
R417
RKZ6.8B2KGP1
D114
RKZ6.8B2KGP1
D115
D119
RKZ6.8B2KGP1
CL081
CL069
CL074
CL077
CL070
CL079
CL071
CL063
CL075
CL064
CL078
CL066
CL072
CL067
CL065
CL068
CL073
CL061
AU_GND
RF_ANT_IN
RF_GND
AUDIO_OUT_L
AUDIO_OUT_R
RSTN
SCL
SDA
+8.5V
POWER_GND
CN01
9
4
5
3
1
2
6
7
8
R432
10k
C450
1
C452
1
R433
0
J1
C101
0.001
R434
0
1
C10
16V
47
C11
4.7uH
L1
1
C15
0R10
1kR13
R102
0
JL011
FB19
C440
1000p
C439
1000p
C103
0.1
0.1
C414
C451
2.2
C442
0.1
DM
DP
16V
10
C420
16V
10
C424
16V
10
C425
16V
10
C413
47k
R405
1
C438
C419
10
CL076
R470
0
R471
0
R468
0
R469
0
C158
1
2.2uH
L431
0
R426
LTA014EUBFS8TL
Q407
LTC014EUBFS8TL
Q409
1000p
C457
1000p
C446
10k
R409
10k
R424
10k
R411
10k
R422
1000p
C105
R19
0
FB420
FB411
FB412
FB413
FB414
FB415
47p
C480
47p
C481
CAM003
CAM002
FB416
2.2
C422
220
R490
220
R491
220
R492
220
R493
220
R494
220
R495
1
C499
C412
47p
47p
C423
47p
C426
47p
C421
C104
47p
FB404
FB405
FB406
FB407
FB408
FB410
LTC014TUBFS8TL
Q401
LTC014TUBFS8TL
Q402
LTC014TUBFS8TL
Q403
LTC014TUBFS8TL
Q404
LTC014TUBFS8TL
Q405
220
R407
220
R421
220
R423
220
R410
220
R404
0
R466
0
R465
0
R464
0
R463
0
R462
0
R442
0
R443
0
R444
0
R445
0
R446
CN102
20P
1 USB_GND
2 USB_VBUS
3GND
4 KEY_GND
5AUX_L
6AUX_R
7 AUX_GND
8RE_0
9RE_1
10 KEY_1
11 KEY_0
12 SIRCS
13 LCD_DATA
14 LCD_CE
15 LCD_CLK
16 ILL
17 PANEL_SW
18 D–
19 D+
20 GND
AU_SUB_CH
AU_FR_CH
AU_RR_CH
AU_RL_CH
AU_IN_LCH
AU_IN_RCH
AU_FL_CH
AU_IN_RCH
AU_IN_LCH
XM_LCH
XM_RCH
KEY0
RE1
LCD_CE
I2C_SCL
AU_FR_CH
AU_FL_CH
AU_RR_CH
AU_RL_CH
AU_SUB_CH
I2C_SDA
LCD_DATA
NOSE_SW
SIRCS
KEY1
RE0
AU_IN_RCH
AU_SUB_CH
AU_RL_CH
AU_RR_CH
AU_FL_CH
AU_IN_LCH
AU_FR_CH
LTA014EUBFS8TL
Q408
R421
0
1
C201
LCD_CLK
MAIN BOARD (2/5)
8
7
4
2
6
9
10
1
5
3
27
25
24
20
26
89
21
22
23
IC401
ELECTRICAL VOLUME, INPUT SELECTOR
BUS1
TUX-DSP02
TUNER UNIT
(BT4100E/BT4100U/BT4150U)
(BT4100P)
Q401 - 405
MUTING
18
Q407 - 409
MUTING CONTROL
(BT4100P)
(ANTENNA IN)
L
R
AUDIO OUT
FRONT
L
AUDIO OUT
REAR
R
I
6
H
1
C
12
K
135
F
82
B
D
G
11
L
10
E
J
9
A
437 14
R412
0
0
R473
0
R742
6P
J403
(MONO)
SUB OUT
1000p
R310
LCH_P
C431
1
LCH_N
C432
1
RCH_N
C434
1
RCH_P
C435
1
Refer to page
service manual
39 on original
(Suffix-22)
(Suffix-21)
(Page 6)
(Page 8)
(Page 10)
(Page 9)
Note: Refer to “MAIN BOARD DISCRIMINATION” on page 1 for
how to distinguish Suf x-21 and Suf x-22 of the MAIN board.

Related product manuals