EasyManua.ls Logo

Sony MEX-BT4100E - Page 66

Sony MEX-BT4100E
76 pages
Print Icon
To Next Page IconTo Next Page
To Next Page IconTo Next Page
To Previous Page IconTo Previous Page
To Previous Page IconTo Previous Page
Loading...
MEX-BT4100E/BT4100P/BT4100U/BT4150U
MEX-BT4100E/BT4100P/BT4100U/BT4150U
88
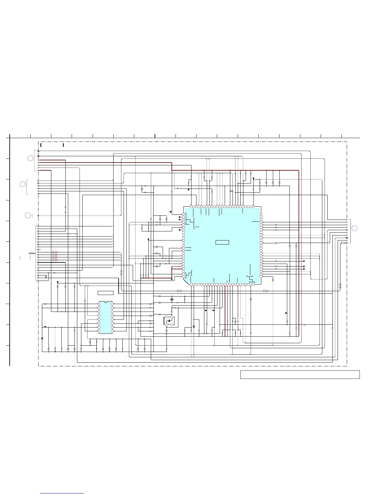
2-6. SCHEMATIC DIAGRAM - MAIN Board (3/5) -
Note: When IC501 is replaced, the destination setting is necessary. Refer to “NOTE THE MAIN BOARD
OR SYSTEM CONTROLLER (IC501) REPLACING” on page 4 on original service manual.
BOARD
(1/5)
MAIN
3
(2/5)
4
BOARD
MAIN
BOARD
(5/5)
MAIN
6
(4/5)
10
MAIN
BOARD
BT
BOARD
2.9
0
3.3
3.3
<0>
<3.3>
3.3
3.3
<3.3>
<3.3>
3.3
3.3
3.3
3.3
0
0
3.3
3.3
3.3
0
0
3.3
0
1.3
1.4
3.3
1.6
1.4
3.3
3.3
<3.3>
3.3
3.3
3.3
3.3
0.8
3.3
2.3
2.5
3.3
<0>
<0>
0
3.3
3.3
0
0
0
0
0
3.3
3.3
0
6
1.5
0
3.3
0
0.9
3.3
10.3
5
14.4
3.3
5
0.9
5
0.8
3.3
3.3
3.3
3.3
3.3
3.3
3.3
3.3
3.3
3.3
3.3
100kR545
0
R543
100k
R536
10M
R541
220k
R542
1000p
C502
100
R525
100R524
100
R523
1000p
C512
1000p
C514
0.01
C523
0.01
C522
100kR576
1k
R517
1k
R518
0R561
0R562
2.2k
R556
2.2k
R557
47p
C521
47p
C520
R584
100k
CL003
CL004
0R548
R544
1M
100k
R560
FB501
JL001
100k
R577
JL008
0
R555
0
R864
1
C1301
100
R1301
0
R1314
0.1C1310
22p
C507
R506
220k
100k
R1302
39k
R1311
0.01
C1307
32.768kHz
X502
2.2
C1308
0.01
C1312
0.01
C1309
0.01
C513
22
C1305
IC1300
OZ539IGN-A1-0-TR
1
BST
2
LX
3
VIN
4
EN_SYS
5
USB_OUT
6
FB_US
7
USB_IN
8
SYNC
9
FLT_USB
10
ISET_USB
11
VIC_USB
12
EN_USB
13
SS_SYS
14
GNDA
15
RT
16
VREF
22
C1315
16V
C1311
100
82k
R1307
82k
R1308
680p
C1306
0.047
C518
10k
R1312
100
R552
100k
R550
100k
R567
0.022
C1325
0.1
C1320
DC_DC
100k
R531
470
R535
100R563
USB1_ON
0
R587
CL005
100R510
100R511
0
R790
G_HOST_GND
JL500
0
FB1301
33k
R522
33k
R521
0
R590
USB_OVER
R101
0
33k
R582
30k
R583
4.7k
R505
100k
R580
100k
R581
100k
R554
100k
R575
100k
R502
10k
R579
10kR578
0.1
C504
CL002
R507
100k
100k
R540
JL501
JL502
100
R595
100
R573
RB751V40,115
D530
DB2441600L
D1300
0
R553
R1315
10k
150k
R1313
10k
R1305
C1318
1000p
IC501
1
NOSE_SW
2
SIRCS
3
UNISO
4
UNISI
5
UNISCK
6
BYTE
7
CNVSS
8
XIN
9
XOUT
10
RESET
11
OSCOUT
12
VSS
13
OSCIN
14
VCC1
15
NMI
16
MEC_SELFSW
17
BUIN
18
NCO
19
RC_IN1
20
MC_RX
21
NCO
22
MC_TX
23
NCO
24
SYNC_OUT
25
SYNC_PRE5V_ON
26
BEEP
27
I2C_SCK
28
I2C_SIO
29
FW_TXD
30
FW_RXD
31
FW_CLK
32
FW_BUSY
33
XM_TX
34
XM_RX
35
XM_POWER EN
36
NCO
37
NCO
38
NCO
39
EPM
40
NCO
41
MEC_LOAD
42
MEC_EJECT
43
NCO
44
CE
45
HIT2_DATA
46
HIT2_CLK
47
HIT2_RESET
48
NCO
49
NCO
50NCO
51
EN_SYS
52
IPOD
53
NCO
54
NCO
55
ACC_IN
56
ATT
57
DIAG
58
AMPSTB
59
GHOST_RST
60
VCC2
61
GHOST_1_5V
62
VSS
63
DSP_RST
64
DSP_SSTBY
65
DSP_1_5V
66
NCO
67
GHOST_3_3V
68
MEC_INSW
69
MEC_DSW
70
NCO
71
CD_XRST
72
MD_MUTE_IN
73
BT_MUTE_IN
74
MUTE_PRE4V
75
MECON_CHECK
76
DEBUG_3
77
DEBUG_1
78
DEBUG_2
79
RE-IN1
80
RE-IN0
81 RE_ON
82 RE_ON(RESERVE)
83 NCO
84
NCO
85 NCO
86 NA
87 NCO
88
NCO
89
KEYACK0
90
KEYACK1
91 NCO
92 KEYIN1
93 KEYIN0
94 AVSS
95 RC_IN0
96
AVRH
97 AVDD
98 NCO
99
DOWNLD_DET
100
BT_MIC_POWER
47uH
L1301
0.1
C106
X501
7.92MHz
1
2
1
C510
R1300
1k
1k
R1320
C509
8p
C511
8p
47
C1304
10kR514
100kR588
10kR515
10k
R516
47p
C1326
22p
C508
1
C1316
100k
R1316
JL007
JL006
JL005
JL004
JL003
JL002
BEEP
KEY0
EN_SYS
BU_IN
MC_TX
A_ATT
CD_XRST
DSP_1_5V
SSTBY
DSP_RST
EJECT
LOAD
XM_PWREN
XM_RX
XM_TX
GHOST_ON
MC_RX
SYNC
RESET
RCIN1
RE1
RE0
GHOST_RST
IN_SW
DOWNLD_DET
D_SW
I2C_SDA
EN_SYS
RCIN0
KEY1
SIRCS
NOSE_SW
SYNC
SELF
BU_IN
I2C_SCL
STB
DIAG
ACC
DC/DC CONVERTER
IC1300
IC501
MAIN SYSTEM CONTROLLER
MAIN BOARD (3/5)
14
11
15
13
16
12
18
20
21
22
23
24
25
27
26
89
BUS3
BUS4
BUS2
R5F3650ECDZ98FB
R5F3650KCDZ95FB
(BT4100E/BT4100U/BT4150U)
(BT4100P)
I
6
H
151
C
12
K
135
F
1682
B
D
G
1110
E
17
J
9
A
437 14
JL001
22 GND
21 GND
20 GND
19 GND
18 MUTE
17 RESET
16 BT_MIC_PWR
15 AUDIO_GND
14 RCH_N
13 RCH_P
12 LCH_P
11 LCH_N
RCH_N
RCH_P
LCH_P
LCH_N
10 NC
9BT_RX
8 BT_TX
7 BT_RTS
6 BT_CTS
5 BT_POWER
BT_RST
BT_RX
BT_TX
BT_RTS
BT_CTS
BT_POWER
4D_GND
3VCC
2D_GND
1MIC_DET BT_MIC_DET
0
R200
R107
0
R100
0
88
R201
0
0
R203
Refer to page
service manual
33 on original
(Page 6)
(Page 10)
(Page 9)
(Page
7)

Related product manuals