EasyManua.ls Logo

Sony RMT-D153A - System Control Block Diagram

Sony RMT-D153A
133 pages
Print Icon
To Next Page IconTo Next Page
To Next Page IconTo Next Page
To Previous Page IconTo Previous Page
To Previous Page IconTo Previous Page
Loading...
DVP-NS325/NS330/NS333/NS430/NS433/NS530/NS725P/NS730P
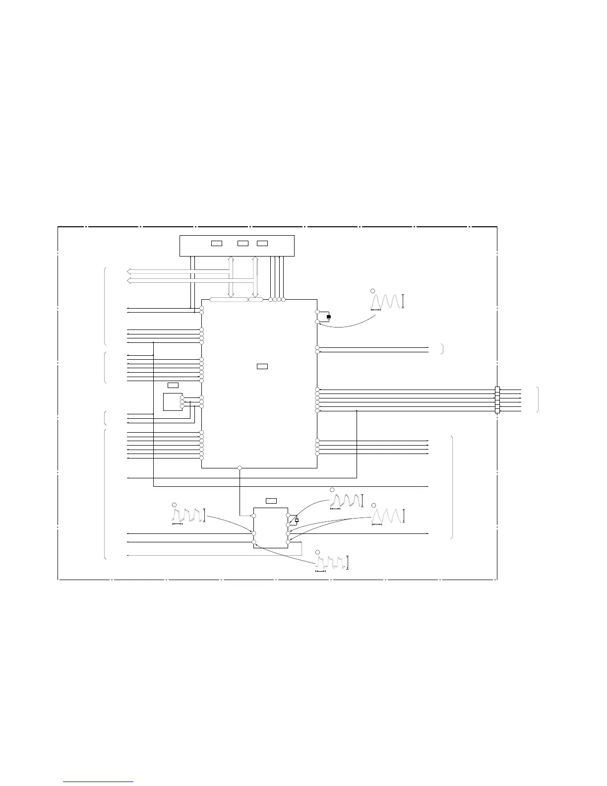
3-2. SYSTEM CONTROL BLOCK DIAGRAM
3-3 3-4
17
62
67
48
18
57
82
63
56
36
15
915
10
20
76
51
83
7
39
26
27
38
25
7
6
5
70
58
71
46
16
81
47
60
61
49
50
8
7
1 – 5 102 – 109 111 – 118 120
85 – 100
14
MB-108 BOARD (1/6)
(SEE PAGE 4-27, 28)
IC106
IC104
SYSTEM
CONTROL
32M FLASH
IC108
1M SRAM
IC103
PLL
IC101
EEPROM
HD 0 – 15
HA 0 – 21
SIGNAL PROCESSOR
(SEE PAGE 3-4)
XARPIT
XARPCS
XWAIT
HA0 – 21 HA1 – 21
HD0 – 15 HD0 – 15
CS0X
SO0
SCO
SI0
INTERFACE
CONTROL
(SEE PAGE 3-7)
SI0
SO0
SC0
XIFCS
XIFBUSY
XFRRST
MA MUTE
XRST
INT4
XFRRST
XIFCS
MA MUTE
48/44.1k
54
53
X101
16.5MHz
XDRVMUTE
INT2
WIDE
CS5X
CKSW1
XDRVMUTE
XSDPIT
OCSW1
XLDON
XSDPCS
CKSW1
DREQ0
INTO
DACK0
CS2X
CS3X
DREQ1
DACK1
DREQ0
XAVDIT
DACK0
XAVDCS2
XAVDCS3
DREQ1
DACK1
VIDEO/AUDIO
(SEE PAGE 3-10)
SIGNAL PROCESSOR
(SEE PAGE 3-4)
RF/SERVO
(SEE PAGE 3-5)
05
33MARP
512FSAVD
X102
27MHz
33-1OUT
FSEL
512FS2CH
XFRRST
59
CS1X
72
XWRL
84
SRAMWE
29
SO1
SO1
30
SC1
SC1
79
XDACS
XDACS
INT1
CS4X
XWAIT
35
XRST
XRST
VIDEO/AUDIO
(SEE PAGE 3-11)
XRST
SCL
SDA
XRST
XRD
XWRH
512-2OUT
512-1OUT
XTI
XTO
3
27MAVD 27-1OUT
X1
X0
HD 0 – 15
HA 0 – 21
XRD
XWRH
3
CN101
5
6
8
4
1
WP
SCL
SDA
OCSW1
SCL
SDA
WP
IPSW
WIDE
AN3
XARPRST
AUDIO/VIDEO
(SEE PAGE 3-9)
HA 0 – 21 HD 0 – 15
IC107
OTP
or
60nsec
3.3Vp-p
IC104 tf
5
1.17msec
3.3Vp-p
IC103 3
1
42nsec
3.3Vp-p
IC103 9 q;
3
38nsec
3.3Vp-p
IC103 8
2
30nsec
3.3Vp-p
IC103 qg
4

Table of Contents

Related product manuals