EasyManua.ls Logo

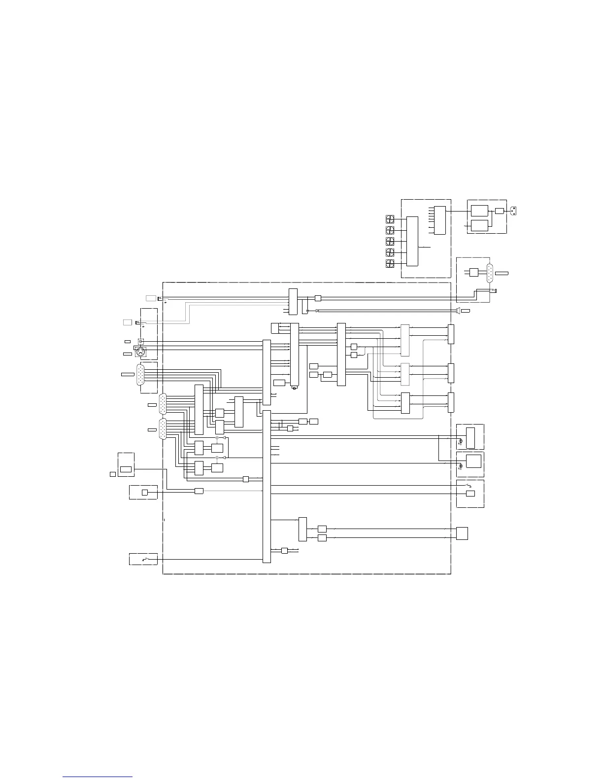
Sony VPL-CX61 - Block Diagrams; Overall Block Diagram

Sony VPL-CX61
110 pages
Print Icon
To Next Page IconTo Next Page
To Next Page IconTo Next Page
To Previous Page IconTo Previous Page
To Previous Page IconTo Previous Page
Loading...
5-1
VPL-CX61/CX63
5-1
OverallOverall
Section 5
Block Diagrams
QA
QB
QC
AUDIO
INPUT
INPUT A,B
IC402
AUDIO
PROC
C
IC404
IC403
SPEAKER
S VIDEO
VIDEO
SDA 100K 1
SCL 100K 1
AU MS L
AU MS R
SDA 400K
SCL 400K
R
G
B
D CLK
H SYNC
V SYNC
IC1501
RESET
IC1502
RESET
IC902
SPREAD
SPECTRUM
IC1503
EEPROM
IC1500
3D
GAMMA
&
TG
IC1506,1507
BUFF/
INV
13
IC1504,1505
BUFF
13
10
10
10
G
R
B
4
RGT3.3,RGTX3.3,FRP,PRG
IC900
SCAN
CONV
CDEC
ADC
IC801
A0-19
D0-15
ROMWEN
ROMOEN
IC903
FLASH
ROM
M CLK R
M CLK G
M CLK B
IC102
MAIN
CPU
IC100
RESET
IC103
EEPROM
S30
V
H2
S70-75
FOCUS-
FUCUS+
ZOOM-
ZOOM+
PICTURE MUTING
NR
IC10
IR
RX
S60
U
PSAVE
LAMP
TEMP
H1
S50-53
ENTER
UP
DOWN
RIGHT
LEFT
MENU
INPUT
POWER
ON/STBY
IC30
ANGLE
DET
LENS
DECODER
IC502
2
2
3
SIRCS NR
SIRCS NF
LAMP COVER
FILT COVER
2
KEY0
KEY3,4
Q100
BUS
SW
SDA 400K
SCL 400K
TXD
FANCONT1-3
RXD
Q101
BUS
SW
SDA 100K 1
SCL 100K 1
Q104
BUS
SW
IC203
SIRCS
3
IC1602
LCD
DRIVER
(G)
6 VSIG1-6
2
VCOM,PSIG
6 VSIG1-6
2
VCOM,PSIG
6 VSIG1-6
2
VCOM,PSIG
4
3
10
4
3
10
IC1700
LCD
DRIVER
(R)
IC1800
LCD
DRIVER
(B)
4
3
10
CN1600
13
13
14
CN1700
CN1800
CVBS
S-Y
S-C
IC2100
SIRCS
RECEIVER
IR
5
1
9
6
RS232C
CN50
J50
QB
RS232C
DRIVER
BUFF
1
1 A-R
A-G
A-B
A-H
A-V
A-SDA
A-SCL
2
3
13
14
5
6
10
11
15
INPUT A
CN300
12
15
1
1 B-R
INPUT
SELECT
B-G
B-B
B-H
B-V
B-SDA
B-SCL
2
3
13
14
5
6
10
11
15
INPUT B
CN400
SDA 100K 2
SCL 100K 2
12
15
IC400
EEPROM
IC401
IC300
EEPROM
Q400
Q300
8
8
8
8
8
8
GRO
GGO
GBO
8
8
8
GRE
GGE
GBE
6
IC302,303
R
G
B
R
G
B
H
IC701
DTV
SYNC
SEP
V
H
V
H
V
H
V
H
V
H
V
H
V
SOG
IC703,504
SYNC
SELECT
IC700
PC
SYNC
SEP
LCD
(B)
LCD
(R)
LCD
(G)
X901
16.384MHz
2 2
ZOOM
MOTOR
DRIVER
2 2
FOCUS
MOTOR
DRIVER
IC506
SELECT
IC301
SELECT
TXD
RXD
IC50
1
5
6
10
11
15
MONITOR OUT
CN52
CN10
J10
J11
J400
(1/2)
(2/2)
MAIN
SWITCHING
REGULATOR
17V
+6V
-6V
D3.3V
SUB3.3V
LINE
IC201
IC102
IC101
ECOSUB
SWITCHING
REGULATOR
PFC
CONTROL
FAN
REG
IC401-405
ECOSUB3.3V
FILTER
GB
AC IN
GA
+13V
PROT
PCONT
FANCONT1-3
FAN A
FAN B
FAN C
FAN D
FAN E
3
3