EasyManua.ls Logo

Spearhead Excel 606 - Page 61

Default Icon
64 pages
Print Icon
To Next Page IconTo Next Page
To Next Page IconTo Next Page
To Previous Page IconTo Previous Page
To Previous Page IconTo Previous Page
Loading...
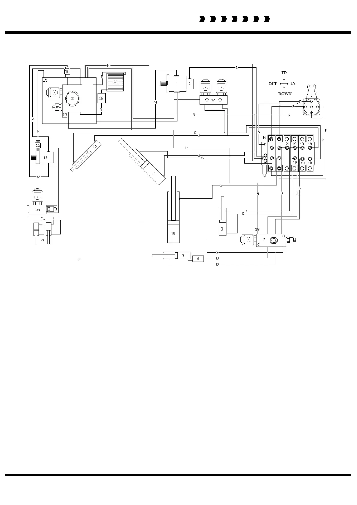
Hydraulic Diagram
Spearhead
1- Pump
2- Pump
3- VRF Ram
4-
5- Joystick
6- SDS Valve
7- Auto Reset Valve
8- Slew Restrictor
9- Slew Ram
10- Main Lift Ram
11- Dipper Ram
12- Head Ram
13- Motor
14- Motor Valve
15- Tank
16- Check Valve
17- Angle Float
18- Returns Filter
19- Restrictor 1mm
20- Restrictor 1.5mm
21- Restrictor 2mm
23- Oil cooler
24- Hydraulic Roller
25- Hydraulic Roller Valve
S- Service Pressure
R- Return Oil
P- Pilot Pressure
B- Break back Pressure
M- Motor Pressure
Excel 606, 686, 726 & 836
61

Related product manuals