EasyManua.ls Logo

Star ES05S - PUMP ELECTRICAL CONNECTIONS; Wire Size Chart and Diagrams; Pressure Switch Installation and Wiring

Star ES05S
11 pages
Print Icon
To Next Page IconTo Next Page
To Next Page IconTo Next Page
To Previous Page IconTo Previous Page
To Previous Page IconTo Previous Page
Loading...
10 11
TANK TO HOUSE CONNECTION (CONTINUED)
5. Make the connection to the house plumbing.
From the tee, install pipe and shut off valve
(optional). (Fig 5)
IL1370
6
IL1371
7
7. Optional tank mounted system is shown.
Connections are basically the same as
explained in previous steps. (Fig. 7)
6. Completed installation with piping and tank is
shown (Fig. 6)
Glue
To House
Plumbing
From Pump
Shut off valve
5
PUMP ELECTRICAL CONNECTIONS
WIRE SIZE CHART
Distance
from Motor to
Meter
Recommended Copper Wire and Fuse
Sizes
Single Phase Motors
1/2 HP 3/4 HP 1 HP 1-1/2 HP
115
Volt
230
Volt
115
Volt
230
Volt
115
Volt
230
Volt
115
Volt
230
Volt
0-50 Ft.
50-100 Ft.
100-150 Ft.
150-200 Ft.
200-300 Ft.
Fuse Size
(Amps)
14
12
10
8
6
15
14
14
14
14
12
15
14
10
8
8
6
20
14
14
14
14
12
15
12
10
8
6
4
30
14
14
14
12
10
15
12
8
6
6
4
30
14
14
14
12
10
20
(*) Not economical to run in 115V, use 230V
CAUTION: All wiring should be performed by a
qualied electrician in accordance with the National
Electric Code and local electric codes.
CAUTION: Connect the pump to a separate
electrical circuit with a dedicated circuit breaker. Refer to
the Wire Size Chart for proper fuse size.
WARNING: Under-size wiring can cause motor
failure and even re. Use proper wire size specied in the
Wire size chart.
WARNING: Replace damaged or worn wiring cord
immediately.
WARNING: Do not kink power cable and never
allow the cable to come in contact with oil, grease, hot
surfaces, or chemicals.
CAUTION: Protect the power cable from coming in
contact with sharp objects.
WARNING: The pump must be properly grounded
using the proper wire cable with ground.
WARNING: Always disconnect pump from
electricity before performing any work on the motor.
IL1380
Pressure
Switch
2
L1
L2
A
B
L1
L2
A
B
115 Volts
Single Phase
Line
230 Volts
Single Phase
Line
Y
E
L
L
O
W
W
H
E
G
R
E
Y
R
E
T
A
N
Y
E
L
L
O
W
W
H
I
T
E
G
R
E
Y
R
E
D
T
A
N
Check Voltage of Power Source
Before Connecting
DO NOT CONNECT ANY GROUND WIRE
TO THESE LEADS
WIRING DIAGRAM
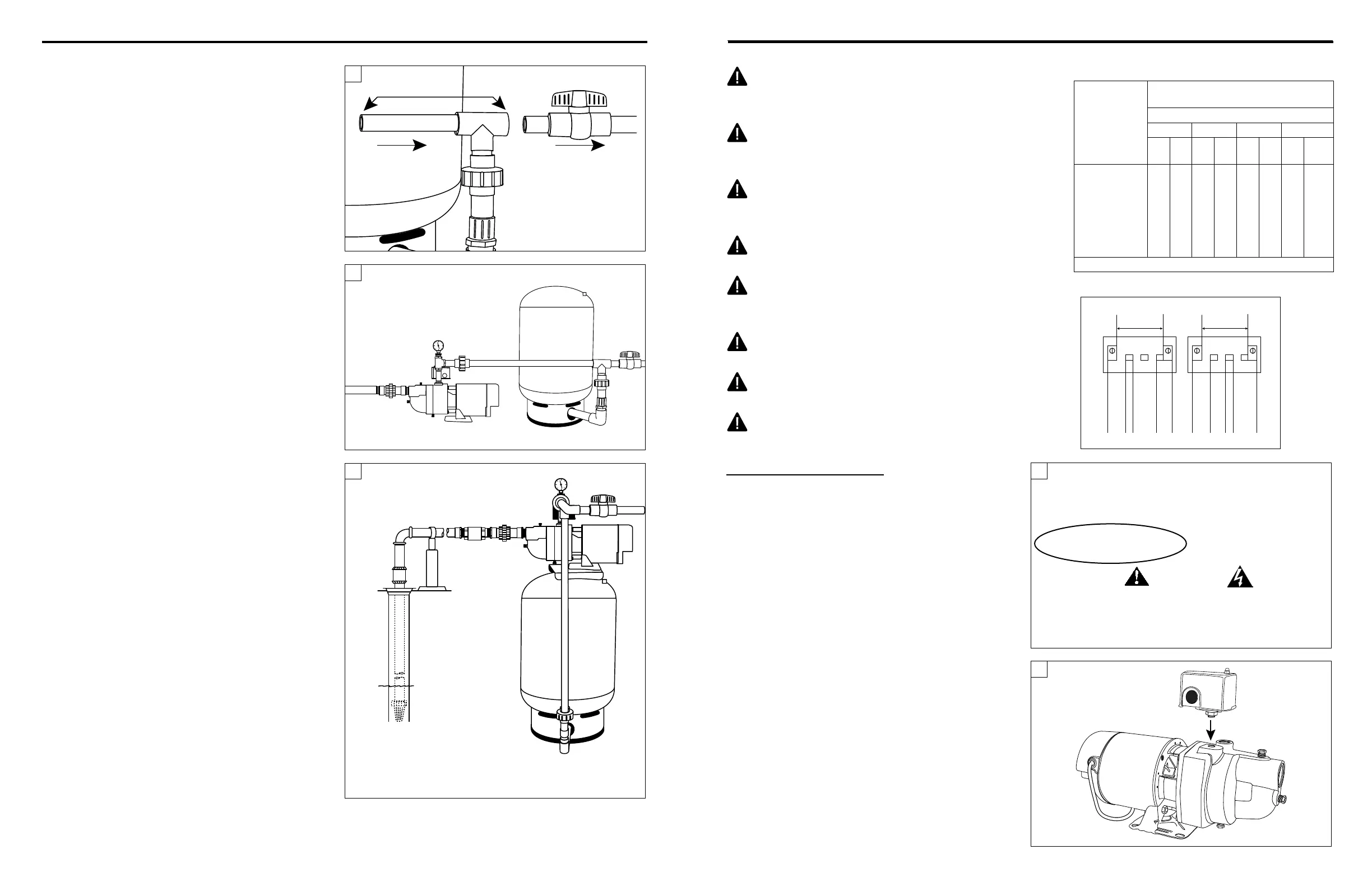
2. Screw the pressure switch into the 1/4 in.
opening on the top of the pump and remove
the switch cover. (Fig. 2)
T
ms.com
Motor: 98L105
HP: 1/2 PH 1 Hz 60
Volts 115/230 S.F. 1.2 Amps 6.4/3.2
S.F. Amps: 8.6/4.3 RPM 3450 Type C
Duty: Cont. Temp 65C KVA Code G
Frame 56L Ins Class B
Factory prewired for 115V Thermally protected automatic
Check voltage of power source Use copper conductors only
ELECTRICAL HAZARD
Improper installation may result in  re, explosion, electrical short or injury. Replace all covers
before operating. Ground motor in accordance with local and national electrical codes.
Disconnect power source before touching internal parts. Motors equipped with automatic
protection may restart without warning.
See instruction manual for proper installation procedure.
Se reporter au manuel d’instructions pour suivre la procédure adéquate d’installation.
Consulte el instructive para conocer el procedimiento de instalación correcto.
1
Wiring the pressure switch
1. CAUTION: Make certain that the power
source matches the pump requirements. This
pump has a dual voltage motor and can run
on 115V or 230V. See pump label for voltage
prewired at the factory. (Fig. 1)
NOTE: To change pump voltage, see wiring
diagram on this page or step-by-step instructions
on page 14.

Related product manuals