EasyManua.ls Logo

Sterling RF-30 - Page 19

Sterling RF-30
32 pages
Print Icon
To Next Page IconTo Next Page
To Next Page IconTo Next Page
To Previous Page IconTo Previous Page
To Previous Page IconTo Previous Page
Loading...
19
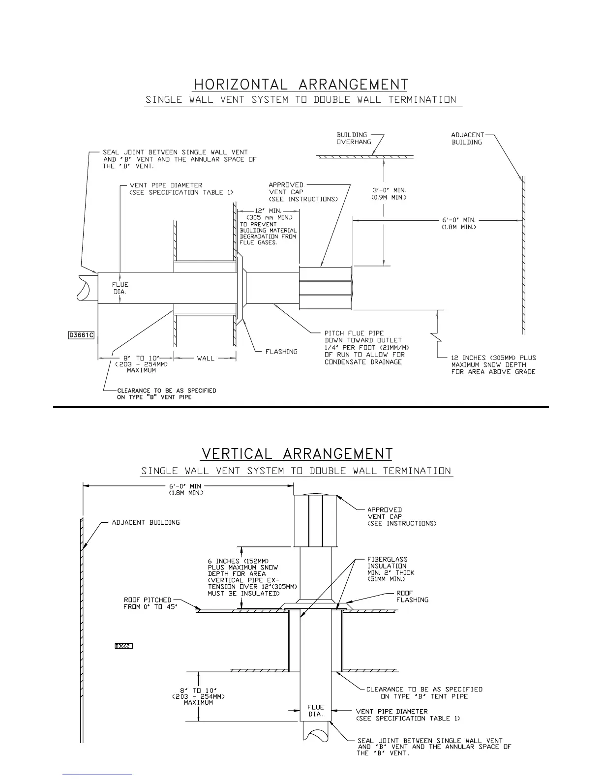
VENTING (continued)
Figure 18
Figure 19

Related product manuals