EasyManua.ls Logo

Storm ST17145 - Requisiti Dimensionali del Luogo DI Installazione Dellunità Interna; Installazione Dellunità Interna

Default Icon
Print Icon
To Next Page IconTo Next Page
To Next Page IconTo Next Page
To Previous Page IconTo Previous Page
To Previous Page IconTo Previous Page
Loading...
Unità interne multi canalizzate
6
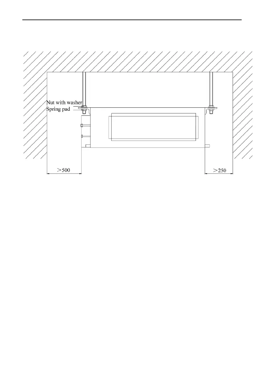
2 Requisiti dimensionali del luogo di installazione
dell'unità interna
Fig. 2
3 Installazione dell'unità interna
a. Requisiti del luogo di installazione
1). Garantire che il supporto a sospensione possa sopportare il peso dell'unità.
2). Verificare che il tubo di scarico possa svuotarsi facilmente.
3). Accertarsi che le aperture di ingresso/uscita e la circolazione dell'aria non
siano bloccate.
4). Prevedere lo spazio di installazione indicato in Fig. 2 per consentire l'accesso
per la manutenzione.
5). Verificare che non vi siano fonti di calore, perdita di sostanze infiammabili o
esplosive, smog.
6). L'unità deve essere del tipo a soffitto (a scomparsa).
7). I cavi di alimentazione e le linee di collegamento delle unità interna ed
esterna devono trovarsi ad almeno 1 m da apparecchi televisivi o radio per evitare
interferenze e rumore (anche se viene mantenuta la distanza di 1 m, forti onde
elettriche possono produrre rumore).
b. Installazione dell'unità interna
1) Inserire il bullone ad espansione M10 nel foro, quindi inserire il chiodo nel

Table of Contents

Related product manuals