EasyManua.ls Logo

Storm ST17145 - Air Outlet and Inlet Drawings; Return Air Duct Installation

Default Icon
Print Icon
To Next Page IconTo Next Page
To Next Page IconTo Next Page
To Previous Page IconTo Previous Page
To Previous Page IconTo Previous Page
Loading...
'XFWHGLQGRRUXQLWIRU0XOWLVSOLW5,QYHUWHU
10
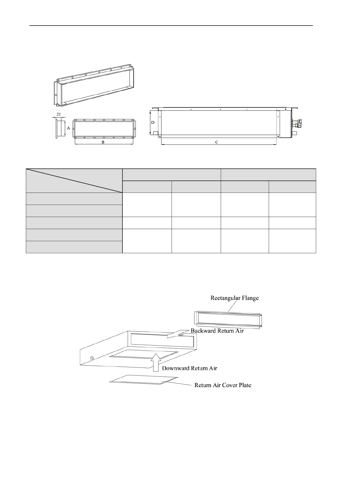
6 Drawings of the Air Supply Outlet and Return Air Inlet
capacity:2.5~7.1kW
Fig.9 Air Supply Outlet Fig.10 Return Air Inlet
Table 4 Dimensions of the Air Supply Outlet and Return Air Inlet (unit: mm)
Item
Model
Air Supply Outlet Return Air Inlet
A B C D

156 662 580 162

 156 862 780 162
7 Installation of the Return Air Duct
a. The default installation location of the rectangular flange is in the back and the
return air cover plate is in the bottom, as shown in Fig.11.
Fig.11
b. If the downward return air is desired, just change the place of the rectangular
flange and the return air cover plate.
c. Connect one end of the return air duct to the return air outlet of the unit by rivets

Table of Contents

Related product manuals