EasyManua.ls Logo

Storm ST17145 - Precauzioni Per Il Montante

Default Icon
Print Icon
To Next Page IconTo Next Page
To Next Page IconTo Next Page
To Previous Page IconTo Previous Page
To Previous Page IconTo Previous Page
Loading...
Unità interne multi canalizzate
14
Fig. 15
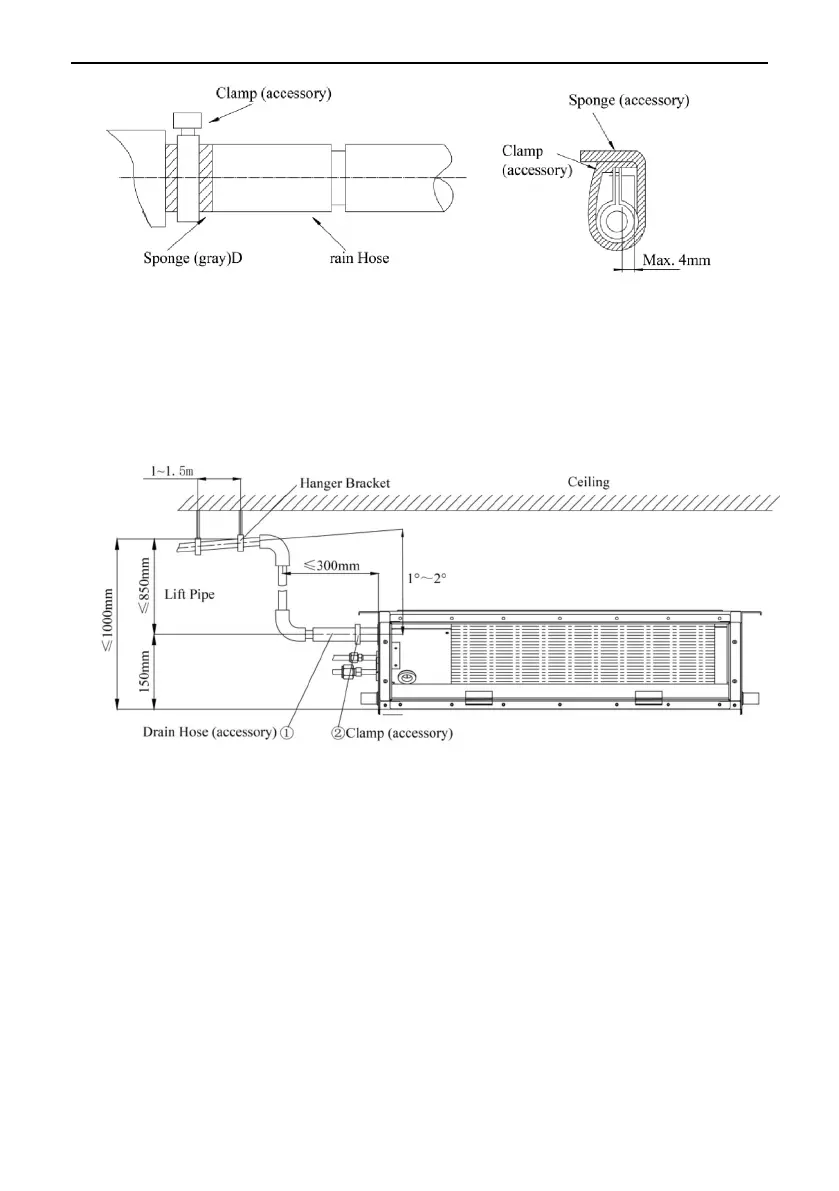
11 Precauzioni per il montante
L'altezza di installazione del montante deve essere inferiore a 850 mm. Si
raccomanda di mantenere un'inclinazione del montante di 1-2° nella direzione di
scarico. Se il montante e l'unità formano un angolo retto, l'altezza del montante deve
essere minore di 800 mm.
Fig. 16
Note:
L'altezza massima di inclinazione del tubo flessibile di scarico deve essere di
75 mm per evitare che l'uscita del tubo flessibile di scarico sia sottoposta a forze
esterne.
Se più tubi di scarico convergono, seguire le istruzioni seguenti per
l'installazione.

Table of Contents

Related product manuals