EasyManua.ls Logo

Stulz CyberAir Mini CW - Page 24

Stulz CyberAir Mini CW
90 pages
Print Icon
To Next Page IconTo Next Page
To Next Page IconTo Next Page
To Previous Page IconTo Previous Page
To Previous Page IconTo Previous Page
Loading...
24
CCD 180 CW
EN/06.2021/G23  © STULZ GmbH – all rights reserved
minispace cw original instructions
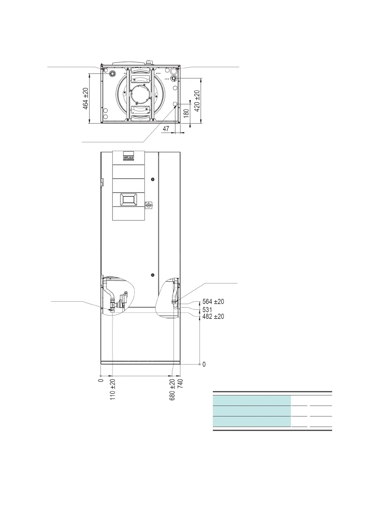
To connect the piping notice the labels on the pipe ends.

All dimensions in mm.
Water connections
Chilled water line
DN 25
Male thread
inch 1
Condensate drain Ø inside
mm 22
Control lines
Power supply
Condensate drain
Water inlet
Water outlet

Related product manuals