EasyManua.ls Logo

Stulz CyberOne EC DX - Typical Internal Layout- Downflow Configuration; Typical Internal Layout- Upflow Configuration

Stulz CyberOne EC DX
51 pages
Print Icon
To Next Page IconTo Next Page
To Next Page IconTo Next Page
To Previous Page IconTo Previous Page
To Previous Page IconTo Previous Page
Loading...
CyberOne EC DX IOM Manual
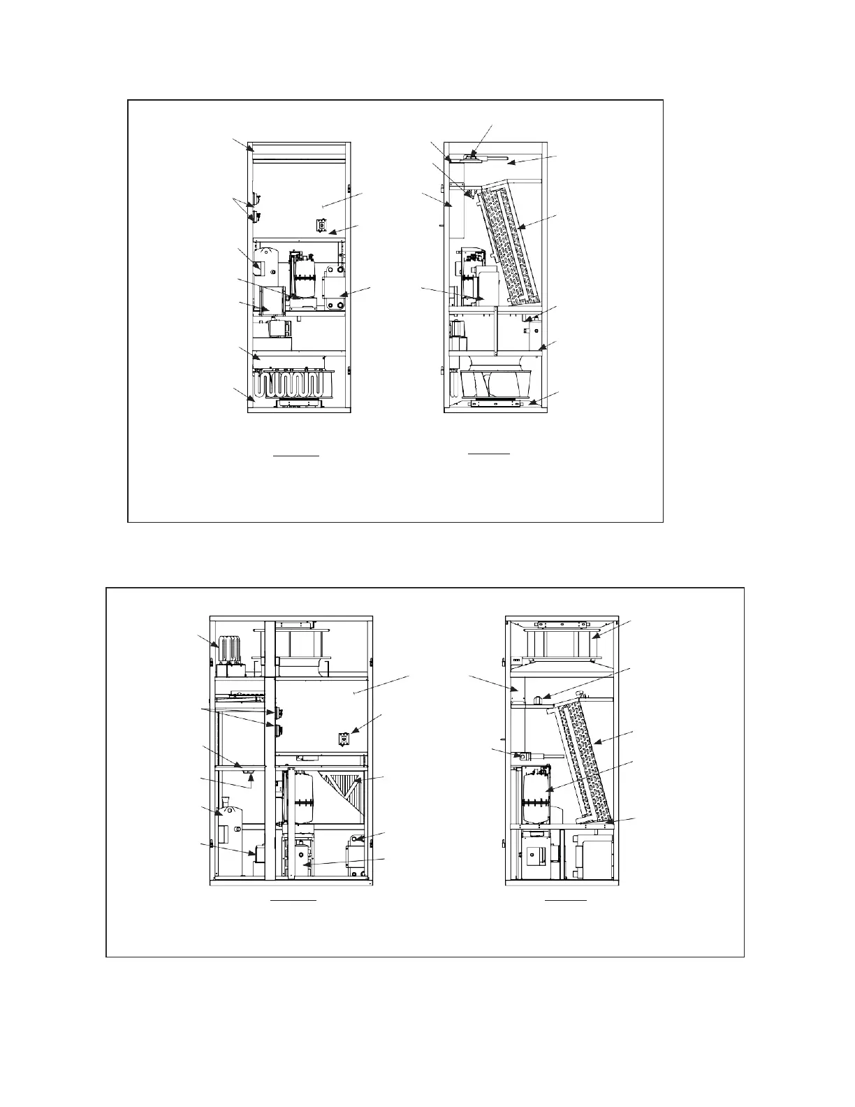
NOTES:
1.
SERVICE DISCONNECT SWITCH HANDLE IS MOUNTED TO FRONT DOOR OF CABINET.
2. CABINET DOOR AND RIGHT SIDE ACCESS PANEL REMOVED TO SHOW INTERNAL PARTS.
RIGHT SIDE
FRONT VIEW
HEAT
EXCHANGER
RECEIVER
(OPTIONAL)
CONDENSATE
PUMP
DRAIN PAN
COMPRESSOR
FILTERS
(CUT
-
AWAY TO
SHOW DETAIL)
T/H SENSOR (BEHIND
SMOKE DETECTOR)
HUMIDIFIER
FIRESTAT
(OPTIONAL)
SMOKE DETECTOR
(OPTIONAL)
COILS
DISCONNECT
SWITCH (NOTE 1)
AIR PROVING
SWITCHES
STEAM
DISTRIBUTOR
ELECTRIC BOX
HEATER
EC FAN
Figure 1. Typical Internal Layout- Downflow Configuration
Model COS-024/060 Shown for Reference
Figure 2. Typical Internal Layout- Upflow Configuration
Model COS-096/120 Shown for Reference
4
NOTES:
1.
SERVICE DISCONNECT SWITCH HANDLE IS MOUNTED TO FRONT DOOR OF CABINET.
2. CABINET DOOR AND RIGHT SIDE ACCESS PANEL REMOVED TO SHOW INTERNAL PARTS.
RIGHT SIDE
FRONT VIEW
EC FAN
HEATER
RECEIVER
(OPTIONAL)
CONDENSATE
PUMP
DRAIN PAN
HUMIDIFIER CONTROL
BOARD ENCLOSURE
HEAT
EXCHANGER
HUMIDIFIER
COMPRESSOR
DISCONNECT
SWITCH (NOTE 1)
COILS
ELECTRIC BOX
AIR PROVING
SWITCHES
FIRESTAT
(OPTIONAL)
T/H SENSOR
STEAM
DISTRIBUTOR
FILTER
SMOKE DETECTOR
(OPTIONAL)

Table of Contents

Related product manuals