EasyManua.ls Logo

Stulz ULTRASONIC - Page 59

Stulz ULTRASONIC
71 pages
Print Icon
To Next Page IconTo Next Page
To Next Page IconTo Next Page
To Previous Page IconTo Previous Page
To Previous Page IconTo Previous Page
Loading...
ULTRASONIC
59
Copyright STULZ GmbH 02/1997
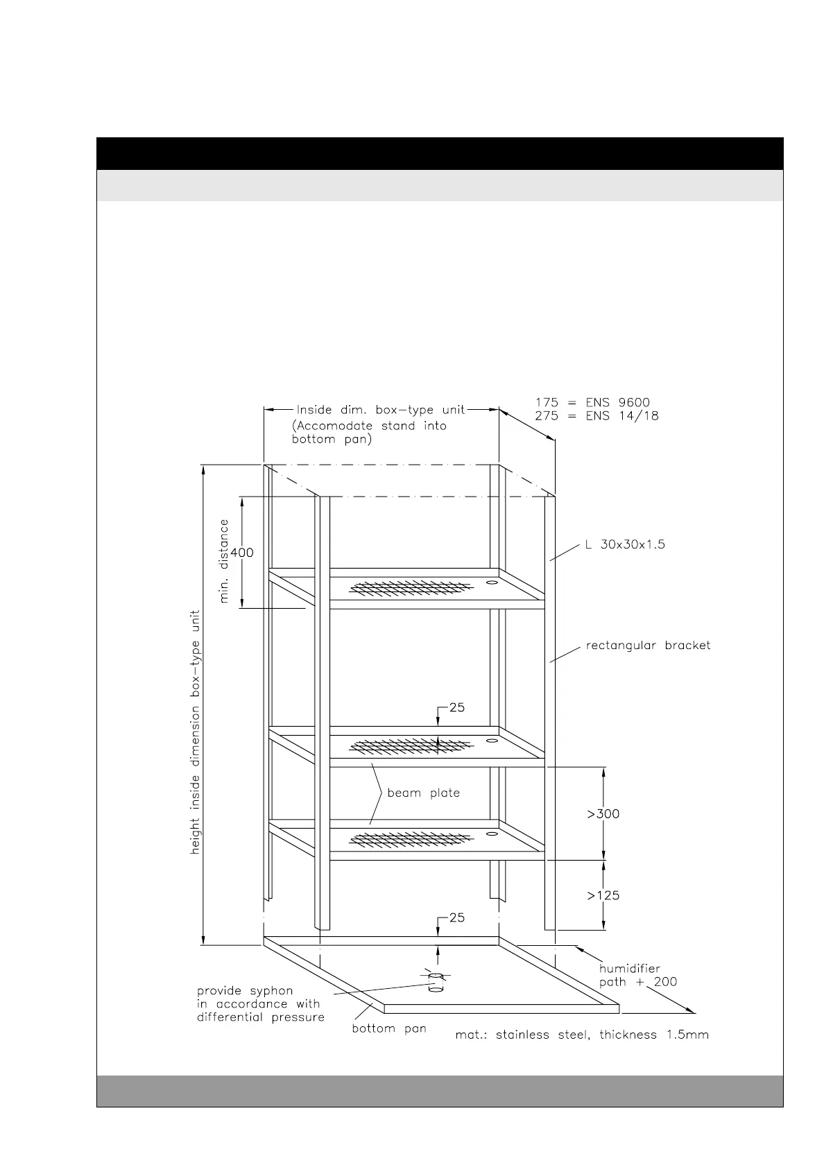
ASSEMBLY ENS SERIES
If several huidifiers ENS are to be installed in a duct or an air
treatment unit, they have to be distributed across the duct cross
section, in order to achieve a constant distribution of humidity in
the airflow.
An appropriate stand to accomodate the humidifier in the air treat-
ment unit is shown in the illustration.

Related product manuals