EasyManua.ls Logo

Sub-Zero BI-36UFD - Page 33

Sub-Zero BI-36UFD
94 pages
Print Icon
To Next Page IconTo Next Page
To Next Page IconTo Next Page
To Previous Page IconTo Previous Page
To Previous Page IconTo Previous Page
Loading...
Built-In Refrigeration 33
subzero.com/specs
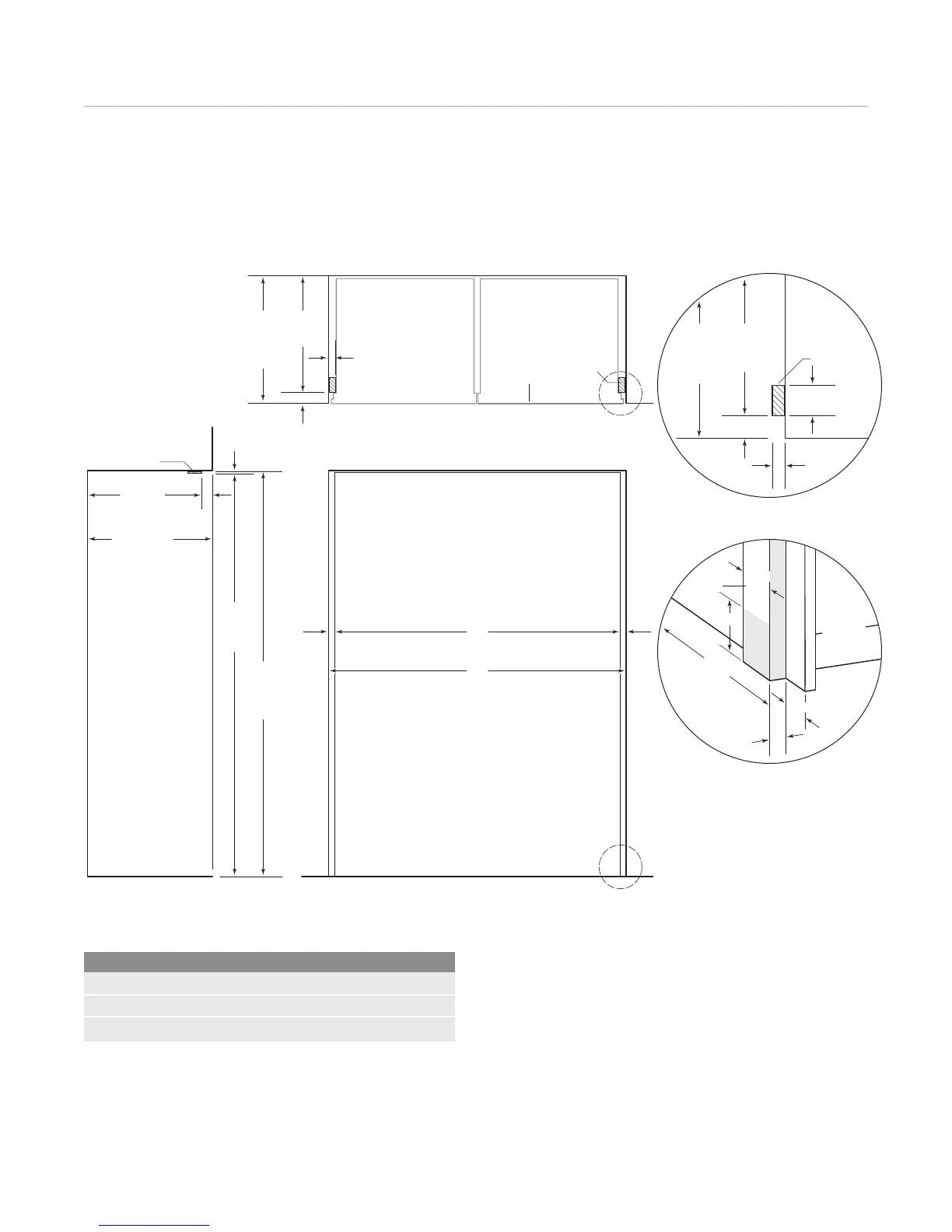
Opening Widths A B
Two 30" (762) Models 59
3
/4" (1518) 62
1
/4" (1581)
30" (762) and 36" (914) Models 65
3
/4" (1670) 68
1
/4" (1734)
Two 36" (914) Models 71
3
/4" (1822) 74
1
/4" (1886)
24" (610)
DEPTH
TO CLEAT
26
3
/16"
(665)
FLUSH
INSET
DEPTH
FRONT VIEW
TOP VIEW
2
3
/16"
(56)
A
WIDTH TO CLEAT
B
FLUSH INSET WIDTH
1
1
/4"
(32)
1
1
/4"
(32)
SIDE VIEW
84"
(2134)
FLUSH
INSET
HEIGHT
1
/4"
(6)
24" (610)
DEPTH TO CLEAT
26
3
/16" (665)
FLUSH INSET DEPTH
2
3
/16"
(56)
83
3
/4"
(2127)
HEIGHT
TO CLEAT
CLEAT
TWO UNITS WITH
3
/4" (19) PANEL
DETAIL A
DETAIL B
1
1
/4"
(32)
CLEAT
Detail A
Detail B
1
1
/
4
"
(32)
24"
(610)
OPENING
DEPTH
TO CLEAT
CLEAT
TOP VIEW
26
3
/
16
"
(665)
FLUSH
INSET
DEPTH
2
3
/
16
"
(56)
3"
(76)
typical
24"
(610)
OPENING
DEPTH TO
CLEAT
1
1
/
4
"
(32)
2
3
/
16
"
(56)
CLEAT
SHADED
AREA
MUST BE
FINISHED
3"
typical
(76)
4"
(102)
Dual Installation
FLUSH INSET INSTALLATION
IMPORTANT NOTE: A dual installation kit will be required
for this installation.
Dimensions assume a
3
/4" (19) panel thickness.

Other manuals for Sub-Zero BI-36UFD

Related product manuals