EasyManua.ls Logo

Sub-Zero BI-36UFD - Page 79

Sub-Zero BI-36UFD
94 pages
Print Icon
To Next Page IconTo Next Page
To Next Page IconTo Next Page
To Previous Page IconTo Previous Page
To Previous Page IconTo Previous Page
Loading...
Wine Storage 79
subzero.com/specs
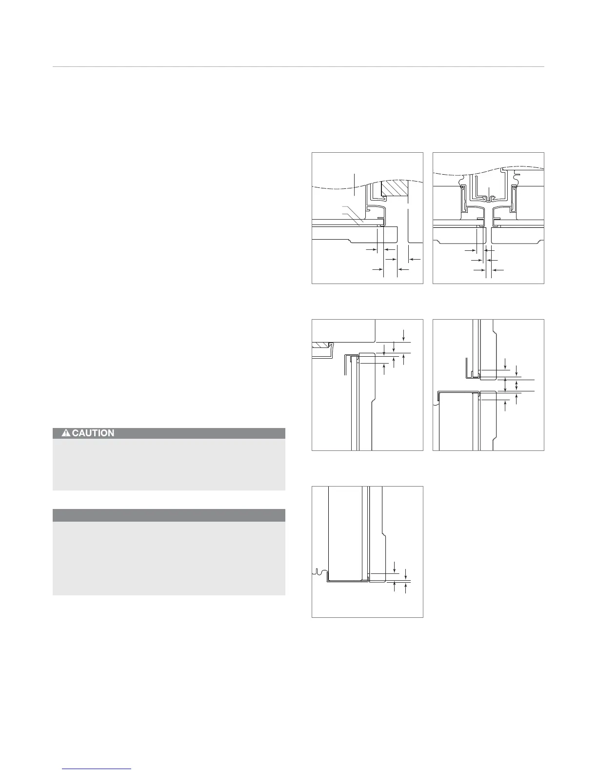
Model WS-30
DUAL FLUSH INSET PANELS
When installing two models WS-30 or a model WS-30
and built-in unit side by side in a flush inset application,
you must decrease the width of the decorative flush inset
panels by
1
/2" (13). Adjustments to the panel offsets will
also need to be made. These adjustments are needed to
achieve a proper fit and to ensure the panels do not
collide when closing. Panel dimensions in the chart below
have been adjusted to reflect the decrease in panel
dimensions.
IMPORTANT NOTE: If a filler strip is not used, dual instal-
lations can only be accomplished using two units with
opposite hinges.
Illustrations A–E provide panel offsets and reveals for
model WS-30 in a flush inset application. Refer to the
chart below for reference to the illustrations. All reveals
are
1
/2" (13) unless otherwise specified.
For additional information on panel reveals, visit the speci-
fication library section of our website, subzerotrade.com.
5
/8"
(16)
5
/16" (8)
1
/2"
(13)
FLUSH INSET PANEL
SPACER
BACKER
DOOR / DRAWER / GRILLE
TOP VIEW
CABINETRY
Illus. A Illus. B
DUAL
TRIM
1
/4" (6)
REVEAL
5
/16" (8)
1
/8" (3)
DOOR DOOR
TOP VIEW
Do not exceed the flush inset decorative panel
dimensions. Exceeding dimensions could cause
damage to the panels and the Sub-Zero unit.
1
/2"(13)
5
/16"
(8)
1
/8"
(3)
CABINETRY
GRILLE
SIDE VIEW
Illus. C Illus. D
1
/2"(13)
3
/32"
(2)
5
/16"
(8)
5
/16"
(8)
5
/32"
(4)
GRILLE
DOOR
SIDE VIEW
5
/16"
(8)
3
/32"
(2)
DOOR /
DRAWER
SIDE VIEW
Illus. E
Panel Offsets Illus.
MODEL WS-30
Doors (hinge) / Grille Sides A
Doors (handle) Sides B
Grille Top C
Grille Bottom / Door Top D
Door Bottom E

Other manuals for Sub-Zero BI-36UFD

Related product manuals