EasyManua.ls Logo

Sullair 4500P - Page 26

Sullair 4500P
70 pages
To Next Page IconTo Next Page
To Next Page IconTo Next Page
To Previous Page IconTo Previous Page
To Previous Page IconTo Previous Page
Loading...
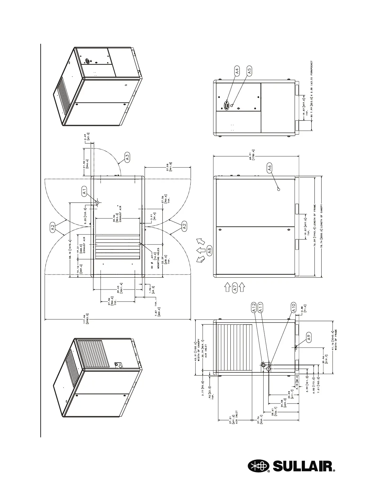
4500P- 7500 USER MANUAL SECTION 3
26
Figure 3-2 Identification - 4500P, 5500 and 7500 Air-Cooled with Enclosure
02250161-702R00

Related product manuals