EasyManua.ls Logo

Super Hot SG-135-E - Page 16

Super Hot SG-135-E
44 pages
Print Icon
To Next Page IconTo Next Page
To Next Page IconTo Next Page
To Previous Page IconTo Previous Page
To Previous Page IconTo Previous Page
Loading...
SG Series Boilers – Installation and Service Manual
16
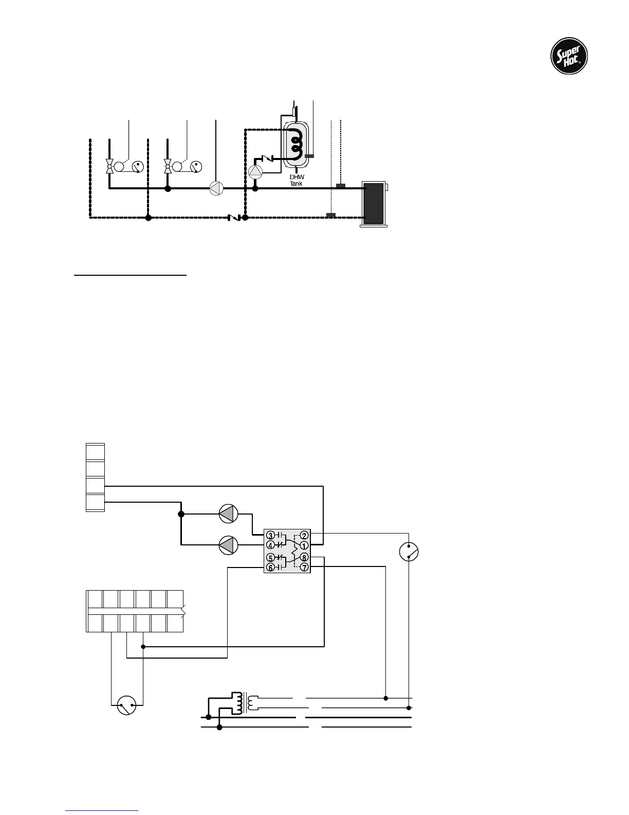
Figure 4 – Typical piping diagram in Mode 4
Sequence of Operation
Thermostat (T1) closed - Thermostat creates a Heat Demand resulting in a boiler target based on the
outdoor reset settings. The boiler pump (Pump1) operates.
DHW Aquastat (A1) closed - DHW Aquastat creates Setpoint DHW Demand and activates external
pump relay. The external pump relay causes the following actions:
1) Power for the boiler pump (Pump1) is broken. Pump1 does not operate.
2) Power for the DHW pump (Pump2) is made. Pump2 operates.
3) Setpoint DHW Demand creates a boiler target based on the higher requirement of the
outdoor reset and reset override setting.
2S
1S
1T1T
1A
1Pump
2Pump
MM
MODE 4 ONLY
(Outdoor reset and reset override)
S1 = Boiler Outlet Sensor 071
S2 = Boiler Inlet Sensor 071
Pump1 = Boiler Pump
Pump2 = DHW Pump
A1 = DHW Aquastat
T1 = Thermostat
A1
Pump 1
Pump 2
ramket
300yaleR
42V
021V )ca(
lanretxE
IIssalC
remrofsnarT
N
L
C
R
L1
L2
P1
P2
C HT ST R FS FS
123456
T1
Figure 5 – Wiring diagram illustrating use of an External Relay to control pump operation

Related product manuals