EasyManua.ls Logo

Superior DRT2035 - Millivolt Wiring Procedures; Electronic Wiring Procedures

Superior DRT2035
76 pages
Print Icon
To Next Page IconTo Next Page
To Next Page IconTo Next Page
To Previous Page IconTo Previous Page
To Previous Page IconTo Previous Page
Loading...
Installation
900004-00, 04/2015
Innovative Hearth Products
Superior™ DRT2000 and DRC2000 Direct-Vent Gas Fireplaces
37
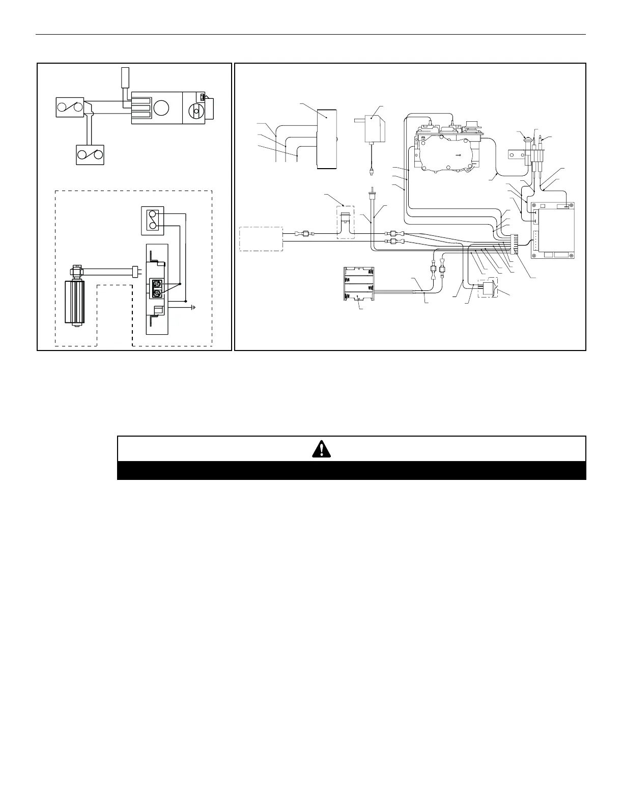
Figure 31: Wiring Diagram—Millivolt Gas Valves Figure 32: Wiring Diagram—Electronic Gas Valves
TP-TH
TP
TH
APPLIANCE- MOUNTED
ON/OFF SWITCH
(OPTIONAL)
BK/W(1)
BK/W(1)
WALL-MOUNTED ON/OFF SWITCH (OPTIONAL)
THERMOSTAT (OPTIONAL)
JUNCTION BOX
BLACK
W
GR
120 V
AC
WALL MOUNTED CONFIGURATION FOR FAN SWITCH (OPTIONAL)
BK
R
THERMOPILE
GAS VALVE
FAN
(OPTIONAL)
P/N 580491-01
JUNCTION BOX
120V AC
REMOTE RECEIVER
ON/OFF SWITCH
WALL SWITCH
LIMIT SWITCH
B-VENT MODELS
ONLY
AC/DC
POWER
ADAPTOR
HOT
NEUTRAL
OPTIONAL
GROUND
BATTERY HOLDER
DFC WIRE HARNESS
SPARK WIRE CABLE
PILOT GROUND WIRE
PILOT
SENSOR
CABLE
HOOD
IGNITER ROD
FLAME SENSOR
PILOT TUBE
OPTIONAL CPI SWITCH
OFF (O) = INTERMITTENT PILOT MODE
ON (-) = STANDING PILOT MODE
PROFLAME DFC BOARD
PROFLAME VALV E
ELECTRONIC PILOT ASSEMBLY
B = BLACK
BR = BROWN
GY = GRAY
PU = PURPLE
R = RED
BL = BLUE
G = GREEN
O = ORANGE
W = WHITE
Y = YELLOW
WIRING COLOR CODE
B
B
B
R
R
W
W
B
B
B
B
BL
BL
G
G
O
Y
Y
R
R
Y
W
G
G
O
SCHEMATIC REPRESENTATION ONLY
1. If installing an ON/OFF wall switch or thermostat, mount it in a convenient location on a wall near the fireplace.
2. Wire the control switch within the millivolt control circuit using the 15 ft of 2-conductor wire supplied with
the unit (Figure 31).
NOTE: The supplied 15 ft of 2-conductor wire has one end of each conductor connected to the gas valve circuit and
the other end of each conductor placed loose inside the bottom compartment.
CAUTION
In millivolt systems, do NOT connect a wall switch to a 120 V power supply.
Electronic Wiring
One of the following optional controls must be used:
ON/OFF Wall Switch,
Thermostat, or
Remote Control.
See the Operation section on Page 50 for more details.
NOTE: Electronic models must be connected to the main power supply.
1. Route a 3-wire, 120 Vac, 60 Hz, 1 ph power supply to the fireplace junction box.
2. Remove the electrical inlet cover plate from the side of the unit by removing the plate’s securing screws
(Table 8).
3. If unit is not supplied with a strain relief, remove the cover plate knockout. Then, feed the power supply wire
through the knockout opening and into the unit junction box.
4. Connect the black power supply wire to the lower outlet’s red pigtail lead (Figure 32 and Figure 33). Connect the
white power supply wire to the outlet’s common terminal.
5. Connect the ground supply wire to the pigtail lead attached to the outlet’s green ground screw. Restrain the inlet
power lead per NEC or local codes.
6. If a wall-mounted ON/OFF control or thermostat is to be used, mount it in a convenient location on a wall near the fireplace.
7. If an optional control is to be used, wire it in the low voltage circuit (Figure 32).
NOTE: The supplied 15 ft of 2-conductor wire has one end of each conductor connected to the gas valve circuit
and the other end of each conductor placed loose inside the bottom compartment.

Other manuals for Superior DRT2035

Related product manuals