EasyManua.ls Logo

Swegon casa tango - Electrical Specifications; Electrical Wiring Diagram

Swegon casa tango
Print Icon
To Next Page IconTo Next Page
To Next Page IconTo Next Page
To Previous Page IconTo Previous Page
To Previous Page IconTo Previous Page
Loading...
EN
Swegon reserves the right to alter specifications.
39
www.swegonhomesolutions.com
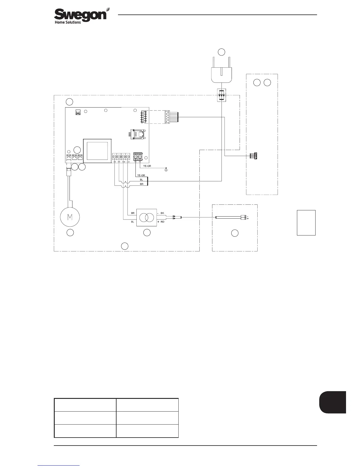
7.4 Electrical wiring diagram
1S000349b
1
2
3
4
5
6
7
8
BK = Black
BL = Blue
BR = Brown
GR = Green
RD = Red
YE = Yellow
Motor
Ext in
Ext out
9
A B
1. Control circuit card (60300; MP087)
2. Mains plug connection; 230 V, 50 Hz, 0.1 A
3. Control panel with touch-screen
electrionics
4. Control panel with buttons (Tango)
5. Damper motor
6. Equipment cubicle
7. LED control system
8. LED light (4000 K)
9. Connections for ITK03 kabel:
A) Ext in: damper control
B) Ext out: damper position signals
Connection, mains plug 230 V, 50 Hz, 0.1 A
Lighting effect 7.5 W
Total output 15 W
7.5 Outputs of the components

Table of Contents

Other manuals for Swegon casa tango

Related product manuals