EasyManua.ls Logo

swepac FB 430 - Wiring Diagram (FB 500); Electrical Component Identification; Electrical Circuit Explanation

swepac FB 430
24 pages
Print Icon
To Next Page IconTo Next Page
To Next Page IconTo Next Page
To Previous Page IconTo Previous Page
To Previous Page IconTo Previous Page
Loading...
20
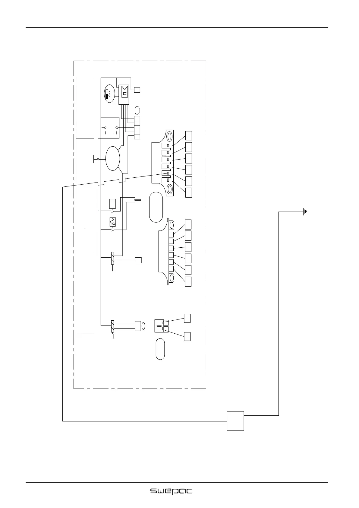
FB 430 / FB 450 / FB 500 / FB 510
Dok: 101498D-GB 2103
X2
Y2
S7
P
M1
M
G
X1
0
X2
X1
65--01
22743224
654321
321
1234 56
22 24
POWER CABLE
COMPACTION
INDICATOR
307851
Red cable
45
ENGINE
7
28 14
7
3
AW
0
HW
S6
Power supply /
Charging device
Starting deviceMonitoring +display
Motor shut-down
THE COMPACTION
INDICAT
OR IS OPTION
Connection from start panel
WIRING DIAGRAM FB 500