EasyManua.ls Logo

sylber DEVYL ARTIC 11 - 2 Description of the Appliance; 2.1 Appliance Parts, Size, and Connections; 2.2 Technical Data; 2.3 Water Circuit Diagram

Default Icon
Print Icon
To Next Page IconTo Next Page
To Next Page IconTo Next Page
To Previous Page IconTo Previous Page
To Previous Page IconTo Previous Page
Loading...
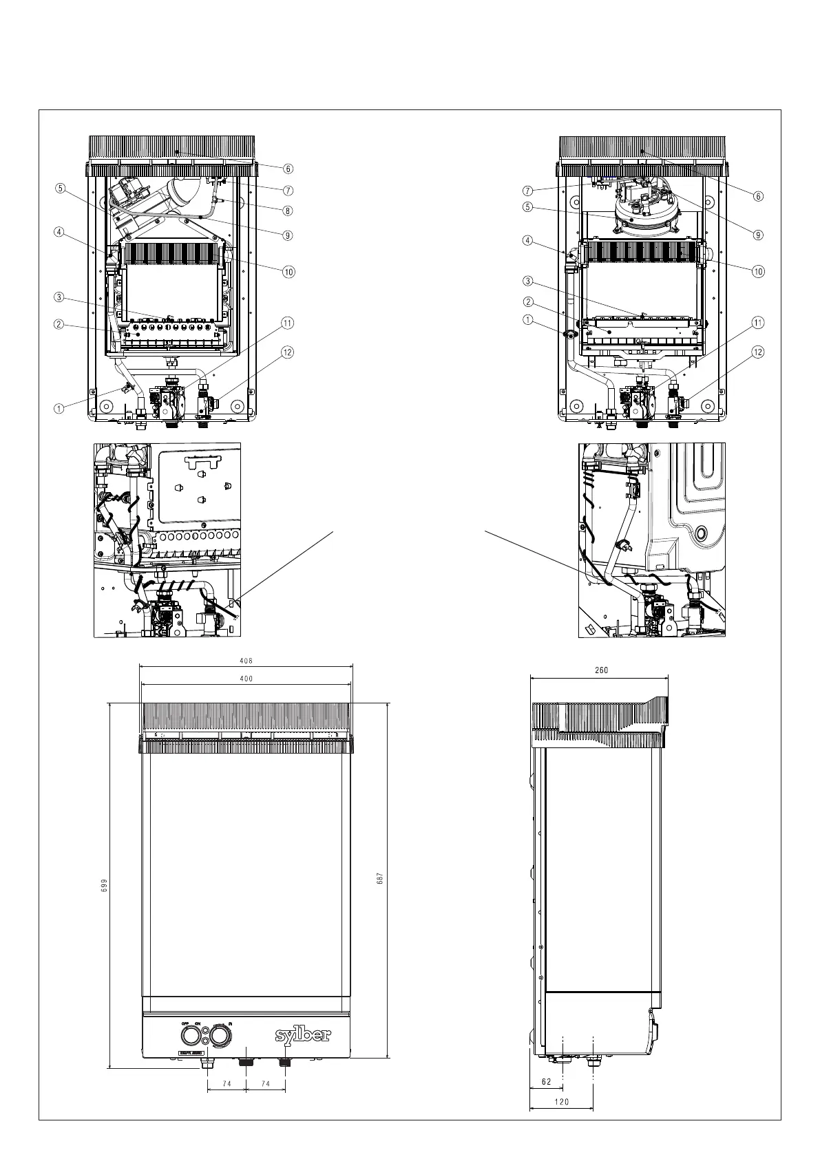
DEVYL ARTIC
18
2 DESCRIPTION OF THE APPLIANCE
2.1 Appliance parts/Size and connections
fig. 1
DEVYL ARTIC 11-13 DEVYL ARTIC 17
1 Limit thermostat
2 Burner
3 Ignition/detection electrode
4 NTC sensor
5 Fan
6 Flue gas outlet
7 Air pressure switch
8 Signal amplifier
(only 11-litre model)
9 Pressure/vacuum
10 Exchanger
11 Gas valve
12 Water flow switch
wire-wound heating element
gas
water

Related product manuals