EasyManua.ls Logo

SystemAir PAW-250W5APAC

SystemAir PAW-250W5APAC
44 pages
To Next Page IconTo Next Page
To Next Page IconTo Next Page
To Previous Page IconTo Previous Page
To Previous Page IconTo Previous Page
Loading...
26
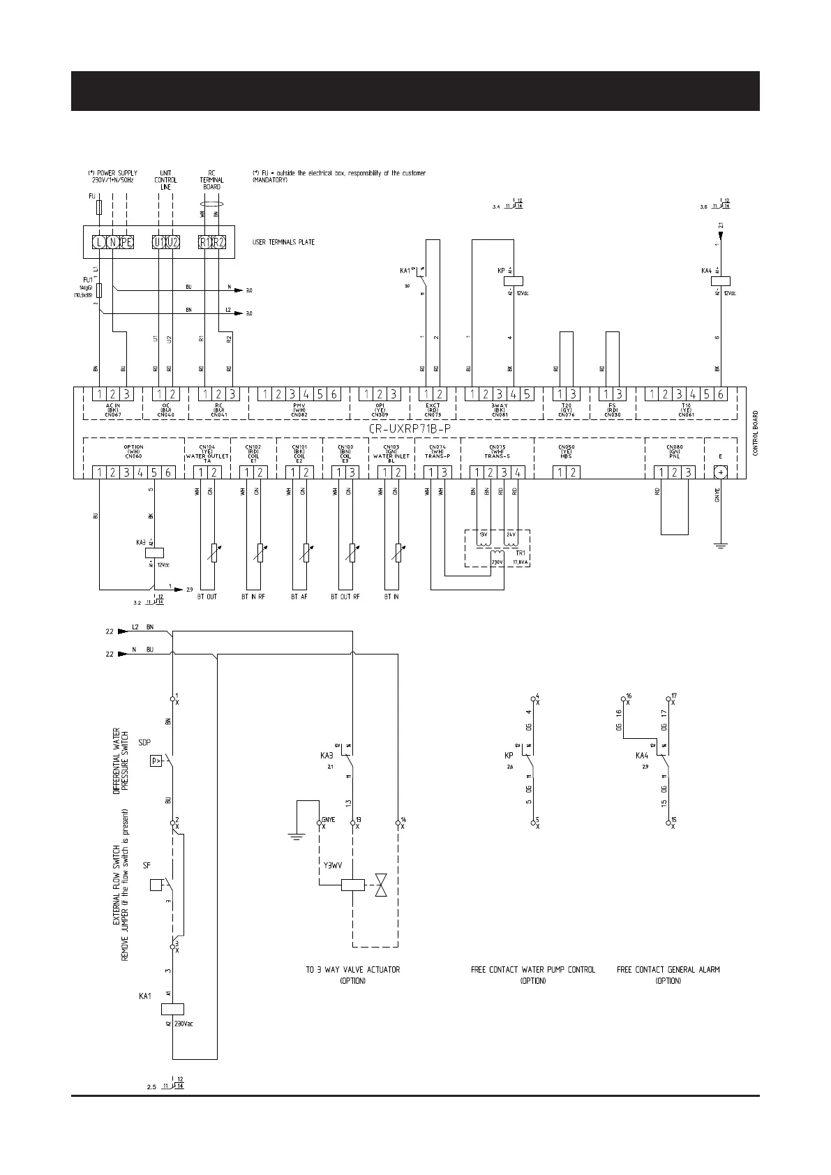
6 - Control
6.3 WHE Wiring Diagram

Related product manuals