EasyManua.ls Logo

SystemAir PAW-250W5APAC

SystemAir PAW-250W5APAC
44 pages
To Next Page IconTo Next Page
To Next Page IconTo Next Page
To Previous Page IconTo Previous Page
To Previous Page IconTo Previous Page
Loading...
30
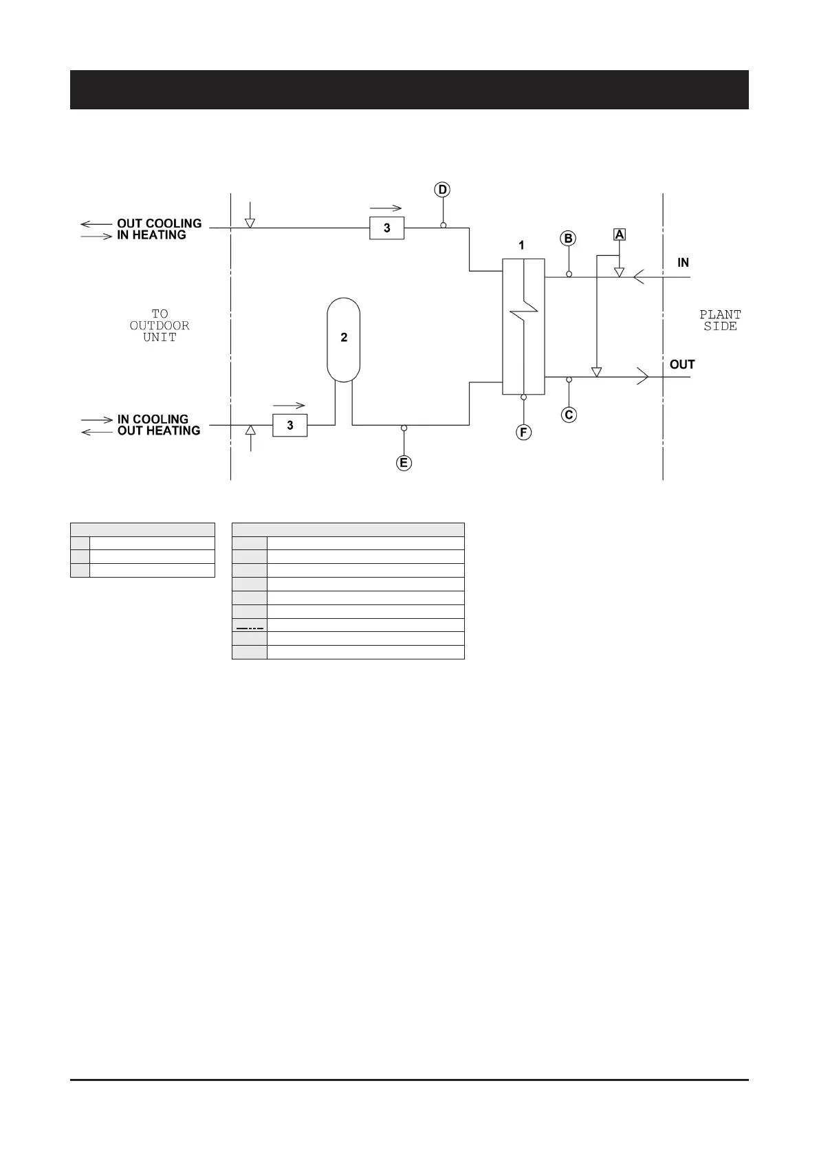
7 - Product Description
COMPONENTS
1 Plate heat exchanger
2 Liquid receiver
3 Strainers*
SAFETY/CONTROL DEVICES
A Water differential pressure switch
B Inlet water temperature sensor
C Outlet water temperature sensor
D Refrigerant probe
E Refrigerant probe
F Antifreeze probe
Unit side
o Probes
Pressure pipe connection with Schrader valve
* Refrigerant strainers can
work in both flow directions.
7.3 Circuit diagram

Related product manuals