EasyManua.ls Logo

Technibel CHG 11 - Presentation

Technibel CHG 11
22 pages
Print Icon
To Next Page IconTo Next Page
To Next Page IconTo Next Page
To Previous Page IconTo Previous Page
To Previous Page IconTo Previous Page
Loading...
GB
3
1 10 2
7 9 6
5 4
4 5
7 6 9
8
1 10 2
8
16
11
3
13
15
12
14
16
11
3
15
13
12
14
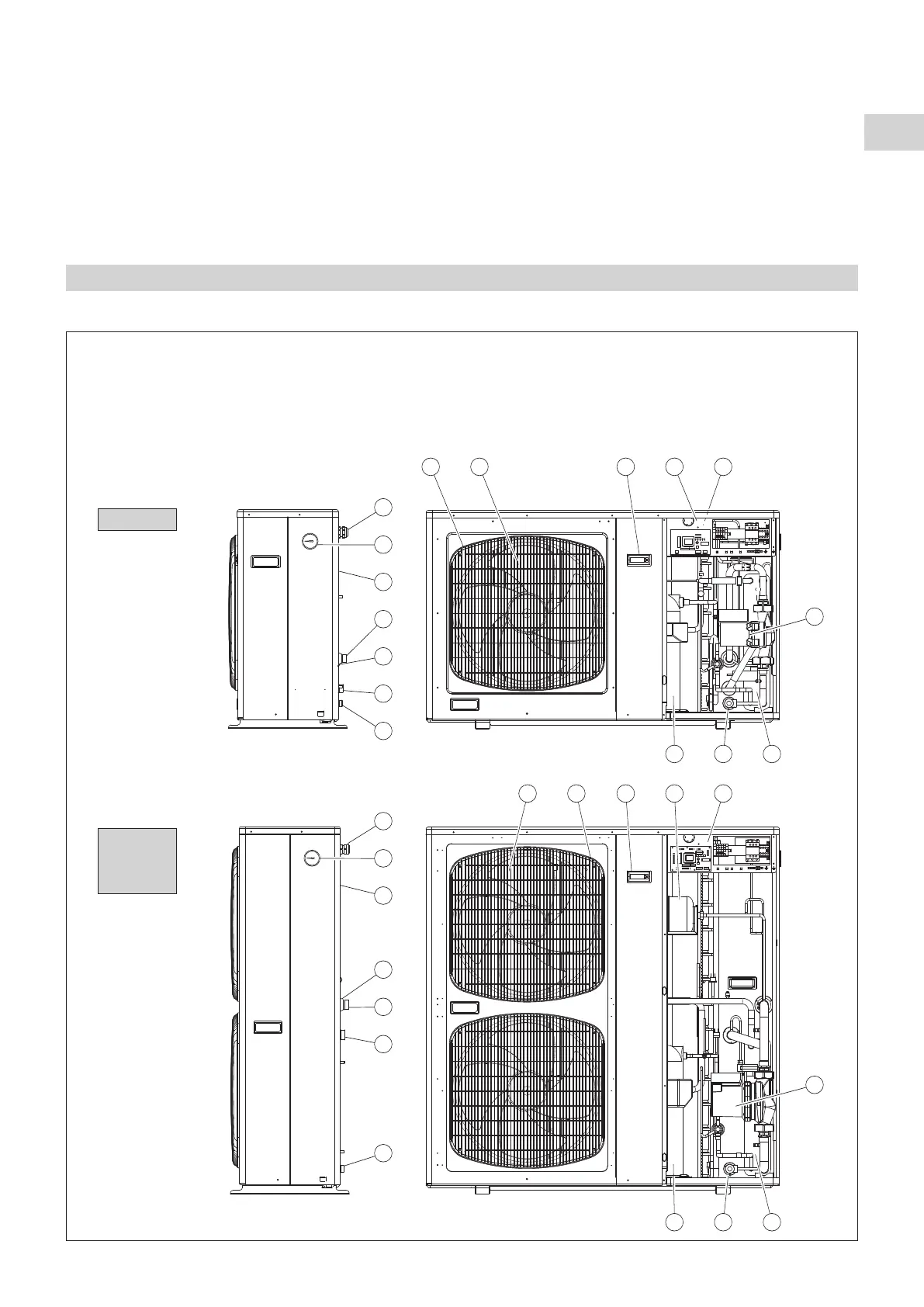
1 - Sound-proofed hermetic compressor.
2 - Plate water heat exchanger.
3 - "Plate-Fin" air heat exchanger.
4 - Fan motor.
5 - Fan protection grille.
6 - Electrical box.
7 - Microprocessor control unit display
keyboard.
8 - Circulating pump.
9 - Expansion tank.
10 - Safety valve.
11 - Pressure gauge.
12 - Water inlet connector.
13 - Water outlet connector.
14 - Filling / drainage of the water circuit.
15 - Air vent.
16 - Hole for connecting cables.
Materials:
- Copper piping.
- Painted sheet metal cabinet.
- Copper/aluminium air heat exchanger.
- Stainless steel water heat exchanger.
- Plastic grille.
2 - PRESENTATION
2.1 - DESCRIPTION
1.3 - VOLTAGE
Before carrying out any operation, check that the voltage indicated on the unit corresponds to the mains voltage.
Before initiating maintenance or servicing on the installation, check that its power supply is disconnected and locked out.
1.4 - USE OF EQUIPMENT
This heat pump is intended for the air-conditioning of premises.
1.5 - OPERATING CONDITIONS
Refer to the technical specifications, the nominal conditions and operating limitations in the technical manual.
CHG 8
CHG 11
CHG 15
CHG 17

Related product manuals