EasyManua.ls Logo

Thor Kitchen HRD Series - Page 22

Thor Kitchen HRD Series
69 pages
Print Icon
To Next Page IconTo Next Page
To Next Page IconTo Next Page
To Previous Page IconTo Previous Page
To Previous Page IconTo Previous Page
Loading...
Installation Instructions
20
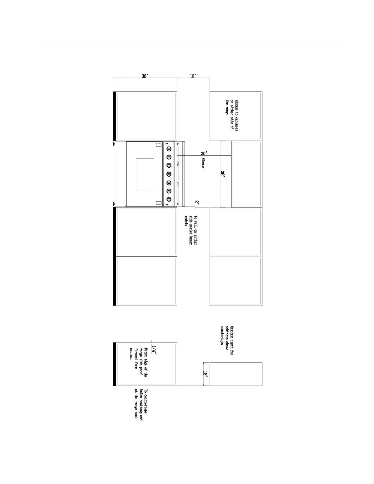
36” Dual Fuel Range Clearance

Table of Contents