EasyManua.ls Logo

Thor Kitchen HRD Series - Page 23

Thor Kitchen HRD Series
69 pages
Print Icon
To Next Page IconTo Next Page
To Next Page IconTo Next Page
To Previous Page IconTo Previous Page
To Previous Page IconTo Previous Page
Loading...
Installation Instructions
21
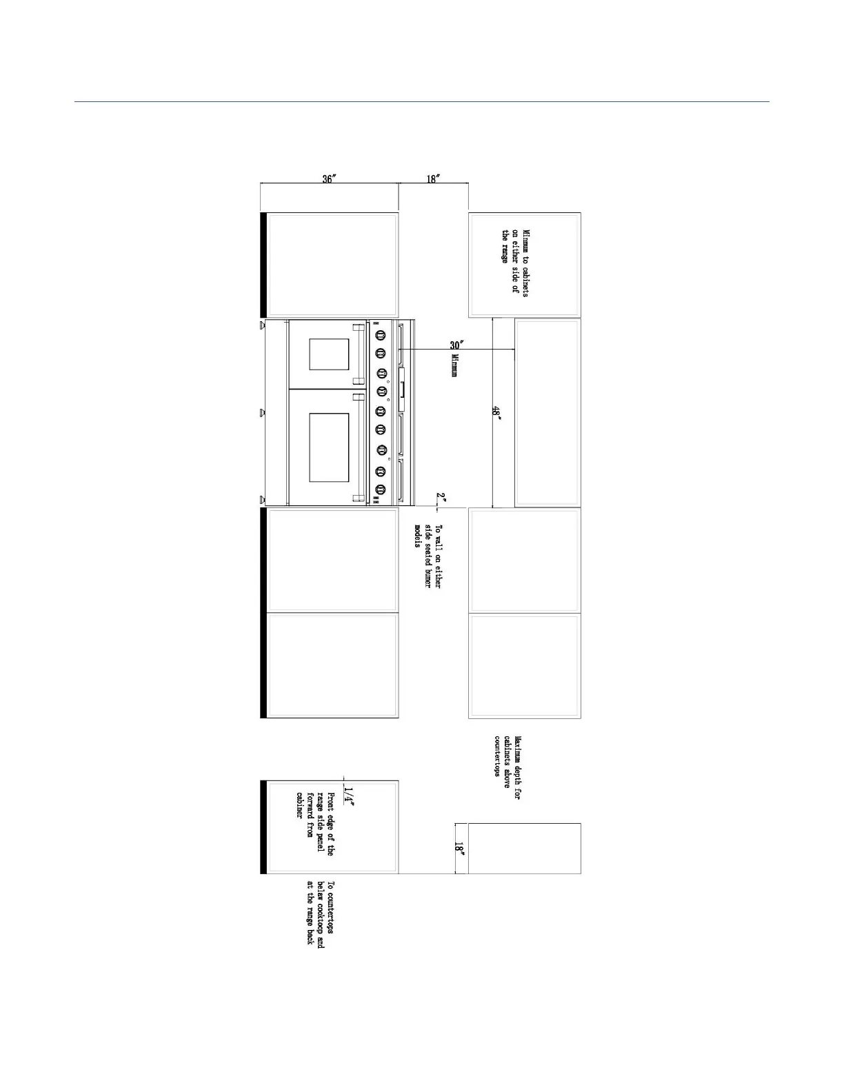
48” Dual Fuel Range Clearance

Table of Contents