EasyManua.ls Logo

Toshiba RAS-07NKHD-E - Refrigeration Cycle: RAS-13 NKD-E; RAS-13 UA-E3

Toshiba RAS-07NKHD-E
86 pages
Print Icon
To Next Page IconTo Next Page
To Next Page IconTo Next Page
To Previous Page IconTo Previous Page
To Previous Page IconTo Previous Page
Loading...
21
FILE NO. SVM-04022
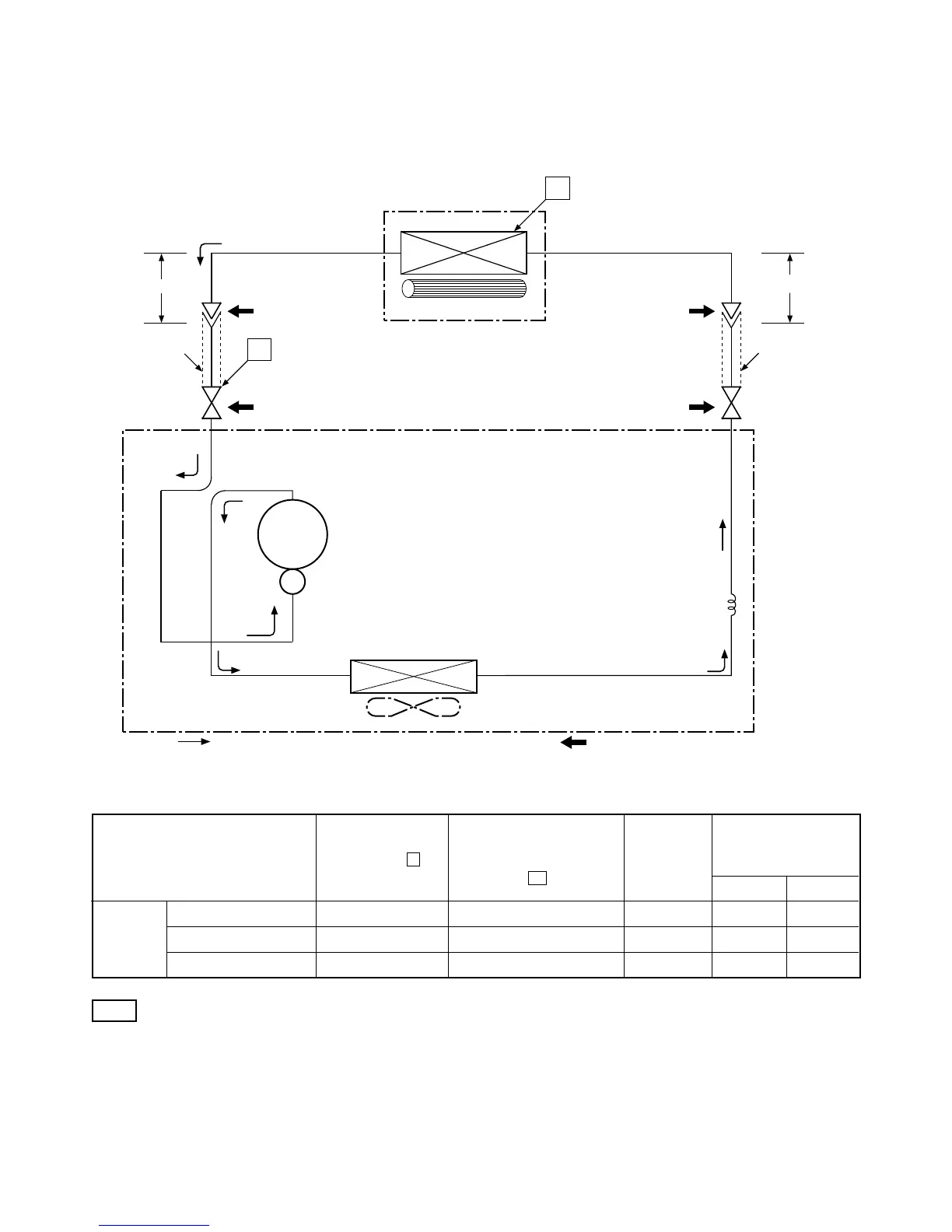
5-4. RAS-13NKD-E / RAS-13UA-E3
Note
Measure the heat exchanger temperature at the center of U-bend. (By means of TC sensor)
Ambient temp.
conditions DB/WB
(°C)
Indoor Outdoor
Standard 0.48 9.0 High 27/19 35/24
Cooling Overload 0.59 15.0 High 32/23 43/26
Low temperature 0.45 2.0 Low 21/15 21/15
Standard
pressure
P
(MPaG)
Surface temp. of heat
exchanger interchanging
pipe
T1
(°C)
Fan speed
(indoor)
50Hz
Heat exchanger
Indoor unit
Cross flow fan
Cooling
Cooling
Compressor
Heat exchanger
Propeller fan
Outdoor unit
Capillary tube
1.7 x 1000
l
PH225X2C-4FT
Cooling
Mark ( ) means check points of Gas Leak.
O.D.:12.7 mm O.D.:6.35 mm
Cooling
Packed valve
(12.7)
Packed valve
(6.35)
0.39 m
(Connecting pipe)
12.7
0.49 m
(Connecting pipe)
6.35
T1
P
Refrigerant
R22 : 0.80 kg.

Table of Contents

Related product manuals