EasyManua.ls Logo

Trane Technologies 4A6H7048 - Outline Drawing

Default Icon
52 pages
Print Icon
To Next Page IconTo Next Page
To Next Page IconTo Next Page
To Previous Page IconTo Previous Page
To Previous Page IconTo Previous Page
Loading...
42
18-GJ89D1-1E-EN
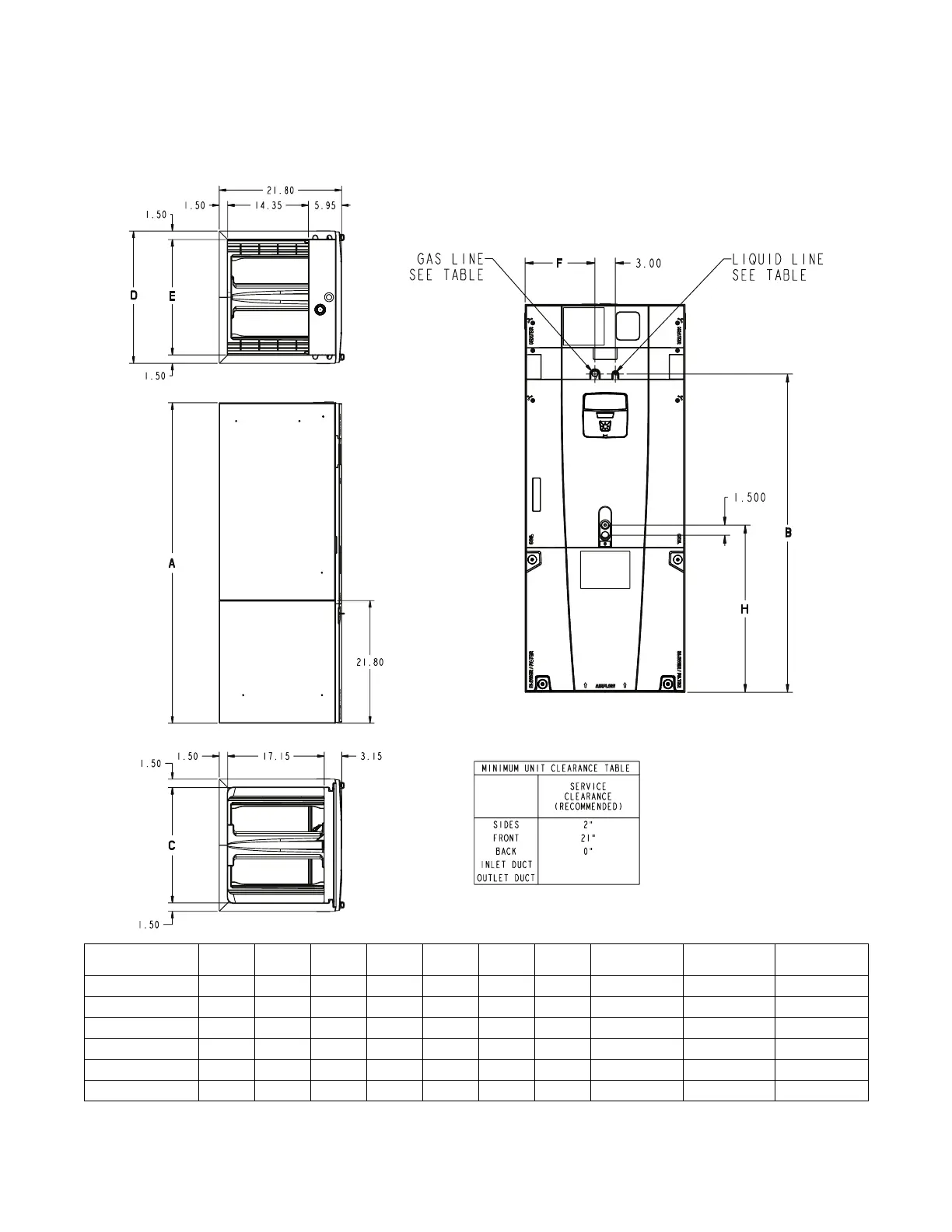
Outline Drawing
NOTE: THIS UNIT IS APPROVED FOR INSTALLATION
CLEARANCES TO COMBUSTIBLE MATERIAL
AS STATED ON THE UNIT RATING NAMEPLATE
Model Number A B C D E F H
FLOW
CONTROL
GAS LINE
BRAZE
LIQ LINE
BRAZE
TAMXB0A24H21DA 49.9 39.6 14.5 17.5 14.5 7.3 24.4 EEV
3/4 3/8
TAMXB0B30H31DA 55.7 45.5 18.4 21.3 18.4 9.2 24.8 EEV
3/4 3/8
TAMXB0C36H31DA 56.9 46.7 20.5 23.5 20.5 10.3 24.2 EEV
7/8 3/8
TAMXB0C42H41DA 56.9 46.7 20.5 23.5 20.5 10.3 24.5 EEV
7/8 3/8
TAMXB0C48H41DA 61.7 51.5 20.5 23.5 20.5 10.3 24.9 EEV
7/8 3/8
TAMXB0C60H51DA 61.7 51.5 20.5 23.5 20.5 10.3 24.9 EEV
7/8 3/8

Related product manuals