EasyManua.ls Logo

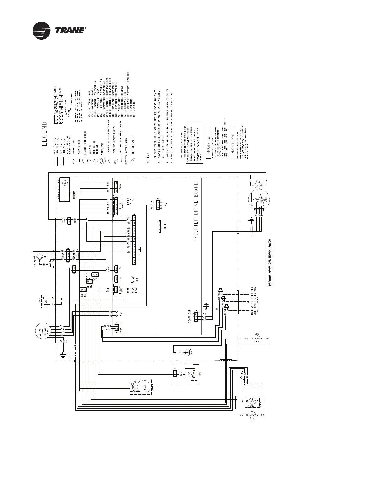
Trane Technologies 4TWV8049A1000B - Wiring Diagram and Legend; Wiring Diagram Legend; Wiring Diagram Notes

Trane Technologies 4TWV8049A1000B
76 pages
Print Icon
To Next Page IconTo Next Page
To Next Page IconTo Next Page
To Previous Page IconTo Previous Page
To Previous Page IconTo Previous Page
Loading...
4T-V8-SF-1M-EN
11
Wiring D157619P04
231
13
2

Related product manuals