EasyManua.ls Logo

Trane Technologies VariTrane VCEF - Single Duct, SCR, 1 Stage Wiring

Default Icon
64 pages
Print Icon
To Next Page IconTo Next Page
To Next Page IconTo Next Page
To Previous Page IconTo Previous Page
To Previous Page IconTo Previous Page
Loading...
VAV-SVX08U-EN
43
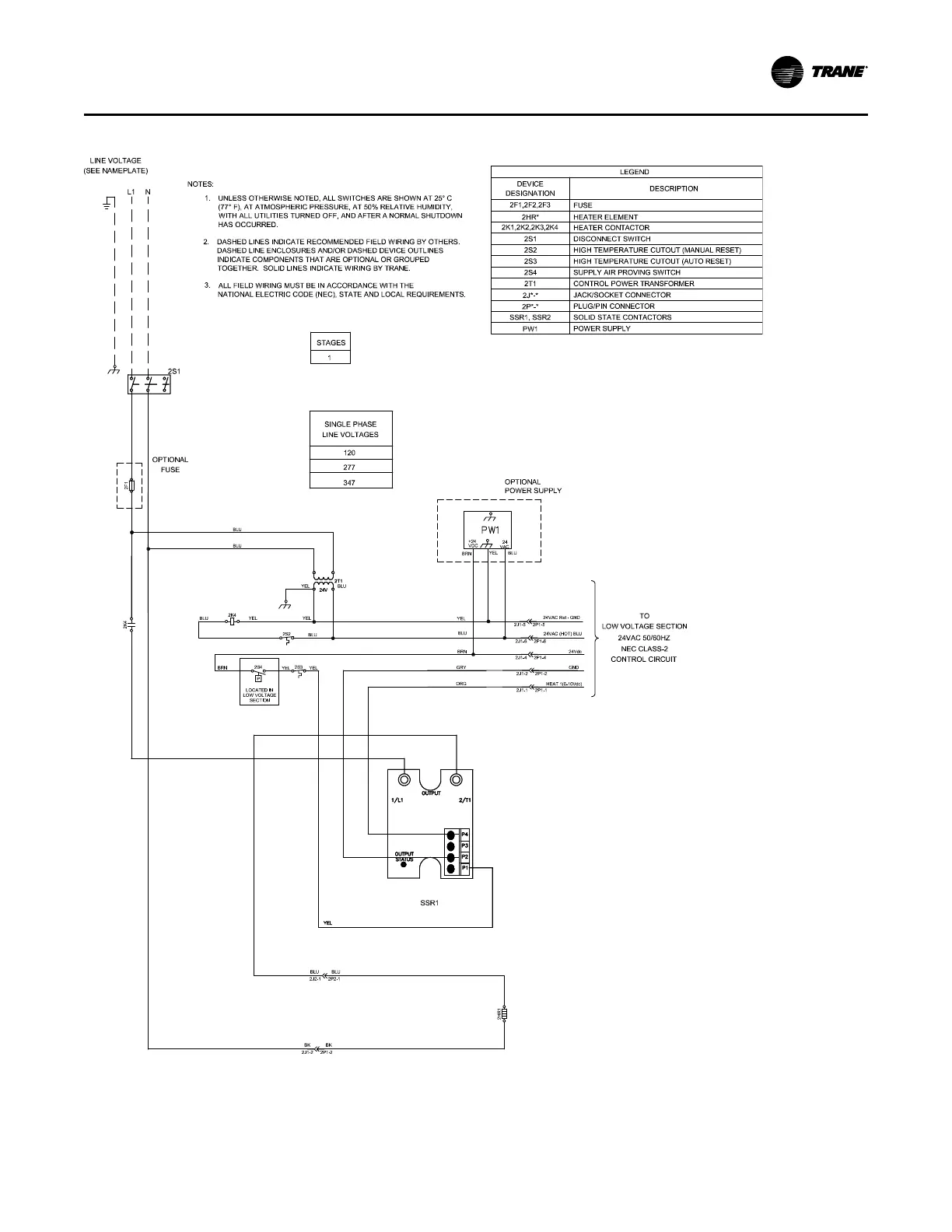
Figure 29. Single duct, single phase, SCR, 1 leg, 1 stage
WWiirriinngg DDiiaaggrraammss

Related product manuals