EasyManua.ls Logo

Trane 4DCY4048 - Optional Equipment

Trane 4DCY4048
25 pages
Print Icon
To Next Page IconTo Next Page
To Next Page IconTo Next Page
To Previous Page IconTo Previous Page
To Previous Page IconTo Previous Page
Loading...
14
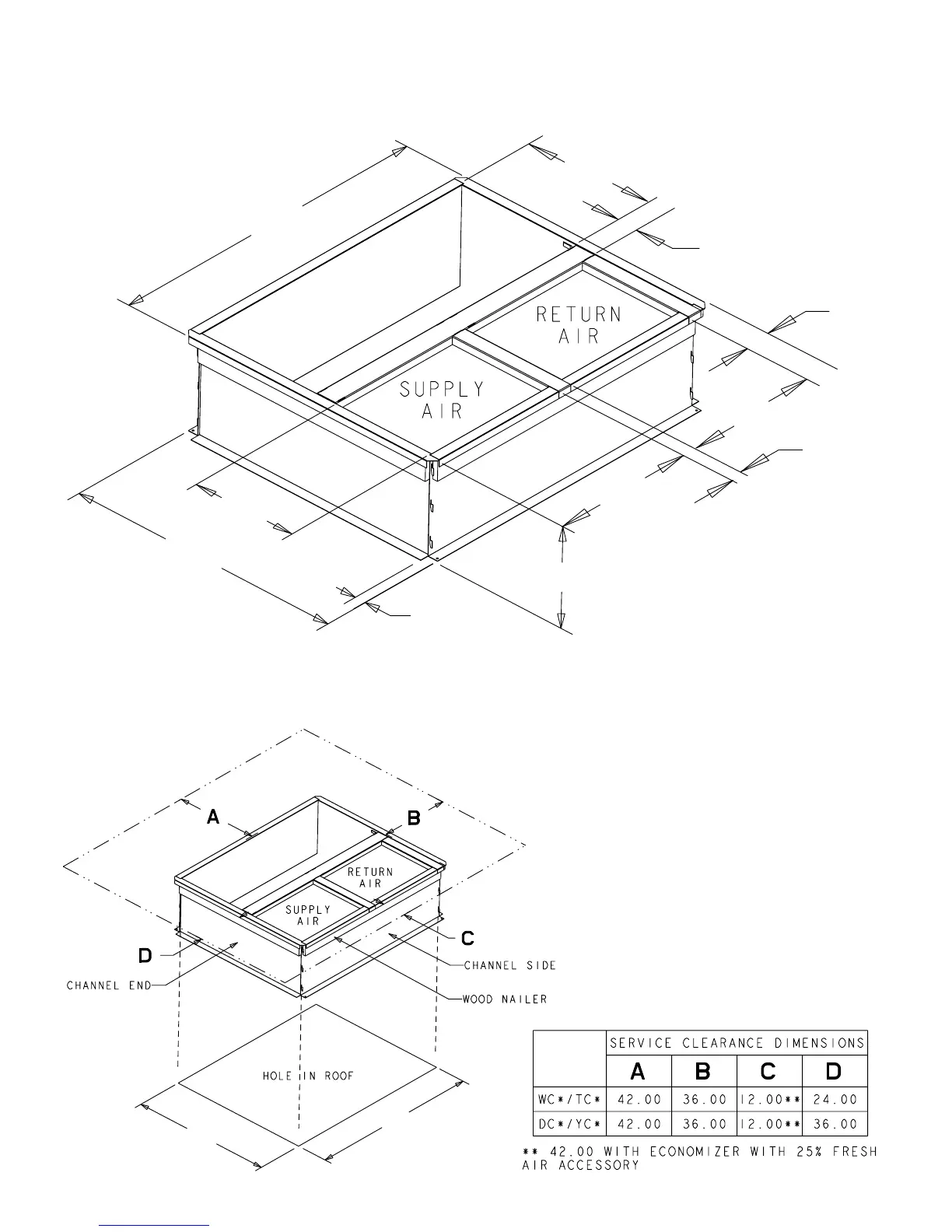
Optional Equipment
BAYCURB050A Full Perimeter Roof Mounting Curb for *****024-036
46 3/8
17 7/8
3
3 5/8
19 1/2
2 3/16
19 1/2
14
1 1/2
38 7/8
15
35 7/8
43 3/8
The drawings on this page are prepared by the
manufacturer in order to provide detail regarding
job layout only. These drawings are not intended to
be used as a basis to construct, build or modify the
items depicted in the drawings. The manufacturer
is not responsible for the unauthorized use of these
drawings and expressly disclaims any liability for
damages resulting from such unauthorized use.

Other manuals for Trane 4DCY4048

Related product manuals