EasyManua.ls Logo

Trane 5TWR5 - Section 18. Wiring Diagrams

Trane 5TWR5
32 pages
Print Icon
To Next Page IconTo Next Page
To Next Page IconTo Next Page
To Previous Page IconTo Previous Page
To Previous Page IconTo Previous Page
Loading...
24 18-BC118D1-1A-EN
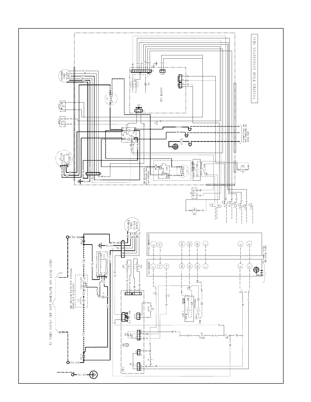
Section 18. Wiring Diagrams
Wiring Diagram - 018A, 024A, 030A & 036A Models

Related product manuals