EasyManua.ls Logo

Trane A5AHC002A1B30A - Wiring Diagram

Trane A5AHC002A1B30A
36 pages
Print Icon
To Next Page IconTo Next Page
To Next Page IconTo Next Page
To Previous Page IconTo Previous Page
To Previous Page IconTo Previous Page
Loading...
18-GF81D1-1A-EN
9
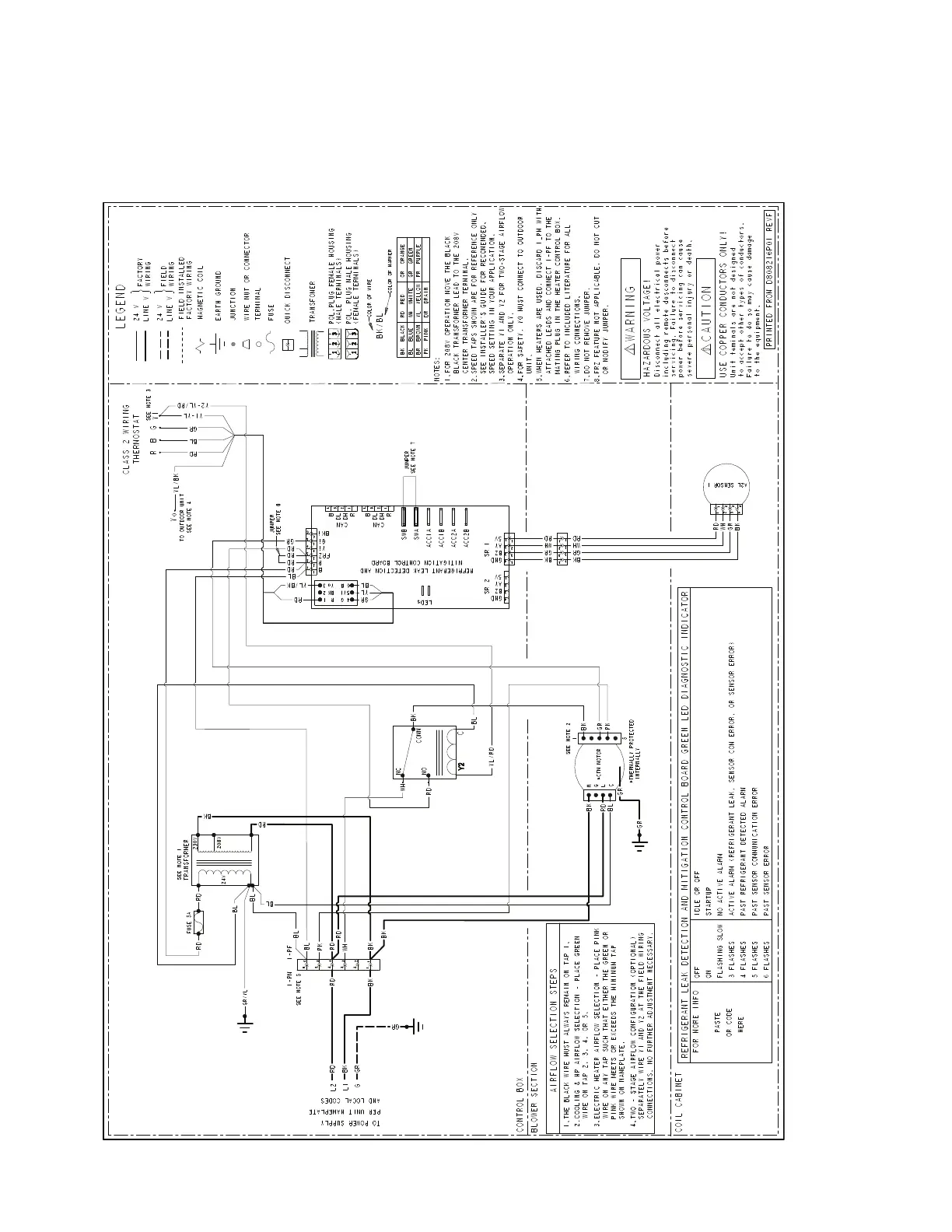
Wiring Diagram

Related product manuals