EasyManua.ls Logo

Trane CVHE - AFDH Drive Package Specifications

Trane CVHE
60 pages
Print Icon
To Next Page IconTo Next Page
To Next Page IconTo Next Page
To Previous Page IconTo Previous Page
To Previous Page IconTo Previous Page
Loading...
18 AFDH-SVN004C-EN
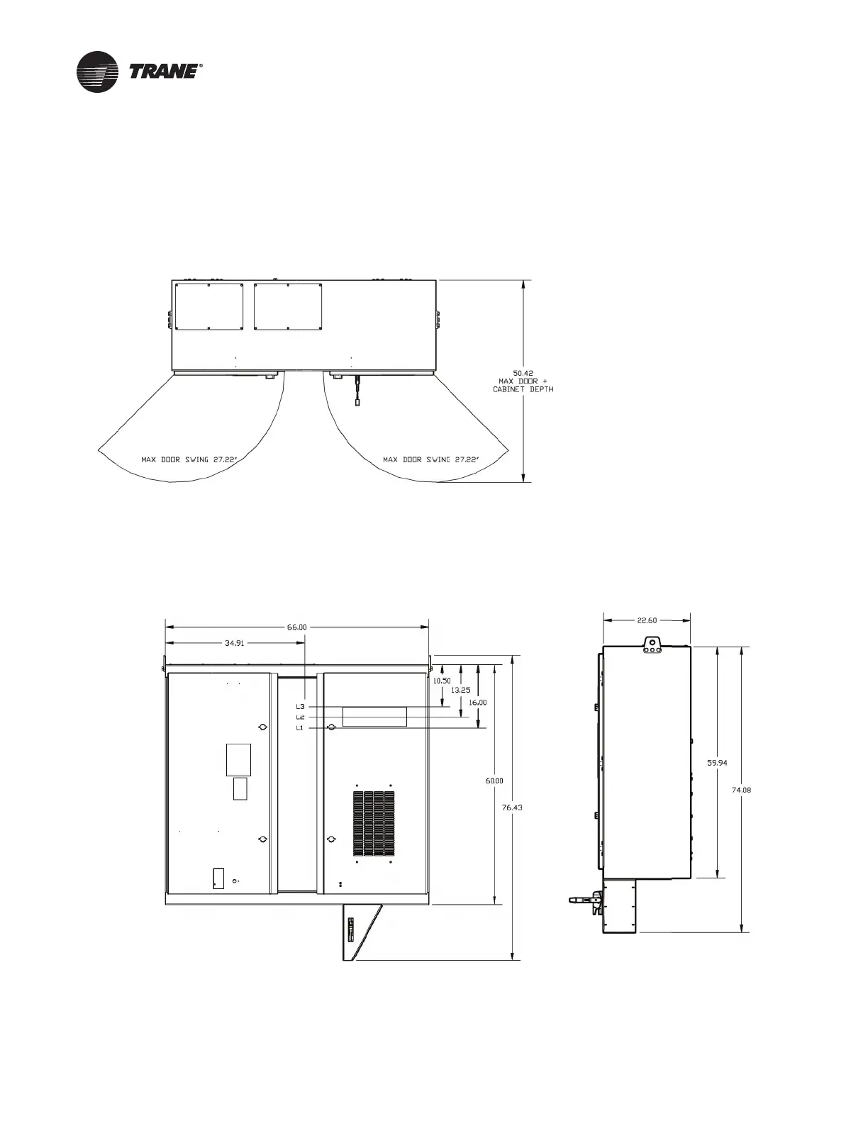
AFDH Drive Package Specifications
Direct Mount Unit Dimension
Figure 14. Top, front, and side view of E-Frame AFDH cabinet with dimensions - Direct mount drive

Table of Contents

Other manuals for Trane CVHE

Related product manuals