EasyManua.ls Logo

Trane CVHE - Liquiflo 1.0;1.5 Frame 4 Unit Dimensions

Trane CVHE
60 pages
Print Icon
To Next Page IconTo Next Page
To Next Page IconTo Next Page
To Previous Page IconTo Previous Page
To Previous Page IconTo Previous Page
Loading...
AFDH Drive Package Specifications
20 AFDH-SVN004C-EN
LiquiFlo 1.0/1.5 Frame 4 Unit
Dimensions
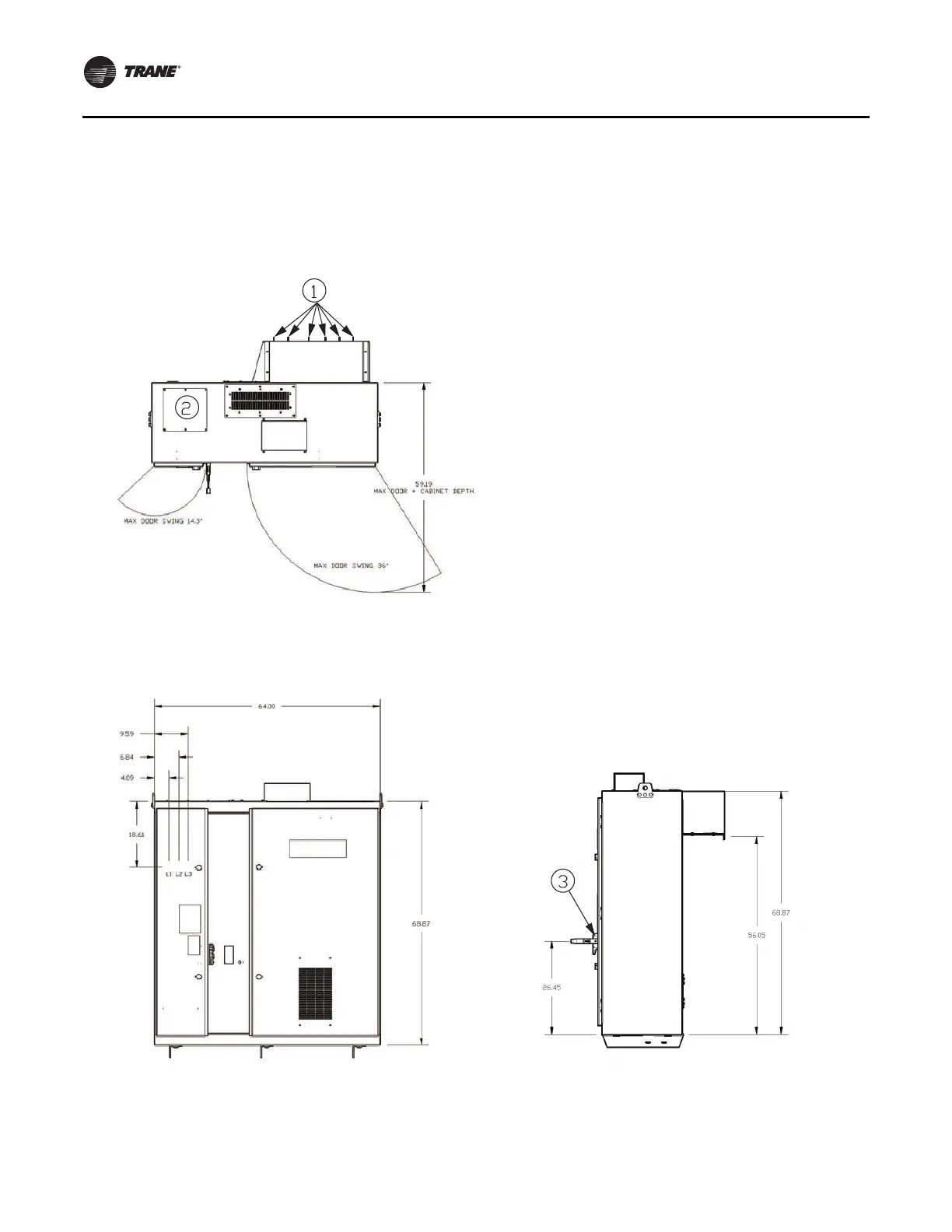
Figure 16. Top, front, and side view of LF 1/1.5 frame 4 E-Frame AFDH cabinet with dimensions - LiquiFlo drive
1. Z-bracket mounting studs (each stud = 3/8-16 x 1.75 in.)
2. Two-piece access door cover on top of the 9.3 in. x 14.9 in. incoming power wire cutout.
3. Electrical disconnect switch

Table of Contents

Other manuals for Trane CVHE

Related product manuals