EasyManua.ls Logo

Trane CVHE - Page 21

Trane CVHE
60 pages
Print Icon
To Next Page IconTo Next Page
To Next Page IconTo Next Page
To Previous Page IconTo Previous Page
To Previous Page IconTo Previous Page
Loading...
AFDH Drive Package Specifications
AFDH-SVN004C-EN 21
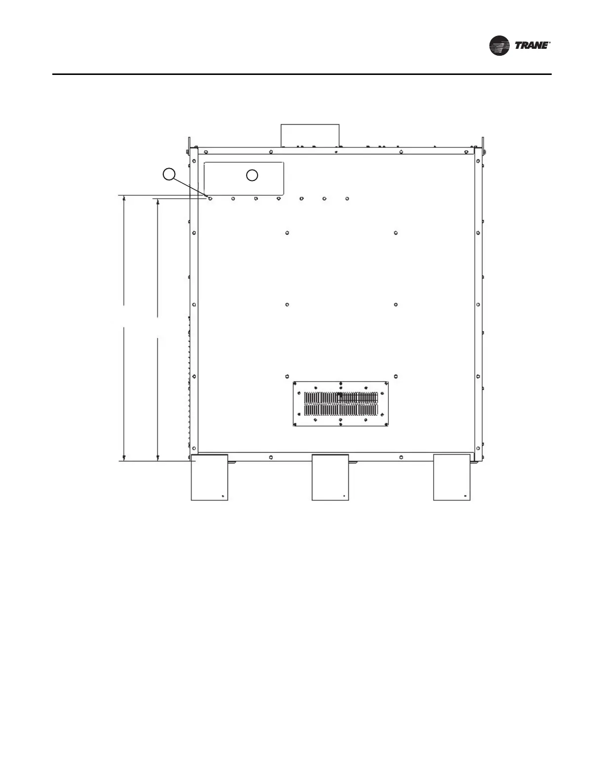
Figure 17. Rear view of LF 1/1.5 frame 4 E-Frame AFDH cabinet with dimensions - LiquiFlo drive
58.40
57.62
1
2
1. Tor terminal access cover. Size of cutout is 7.2 in. x 17.6 in.
2. Centerline of Z-bracket mounting studs

Table of Contents

Other manuals for Trane CVHE

Related product manuals