EasyManua.ls Logo

Trane CVHF - Drive Unit Weights

Trane CVHF
68 pages
To Next Page IconTo Next Page
To Next Page IconTo Next Page
To Previous Page IconTo Previous Page
To Previous Page IconTo Previous Page
Loading...
AFDH-SVN01A-EN 25
AFDH Drive Package Specifications
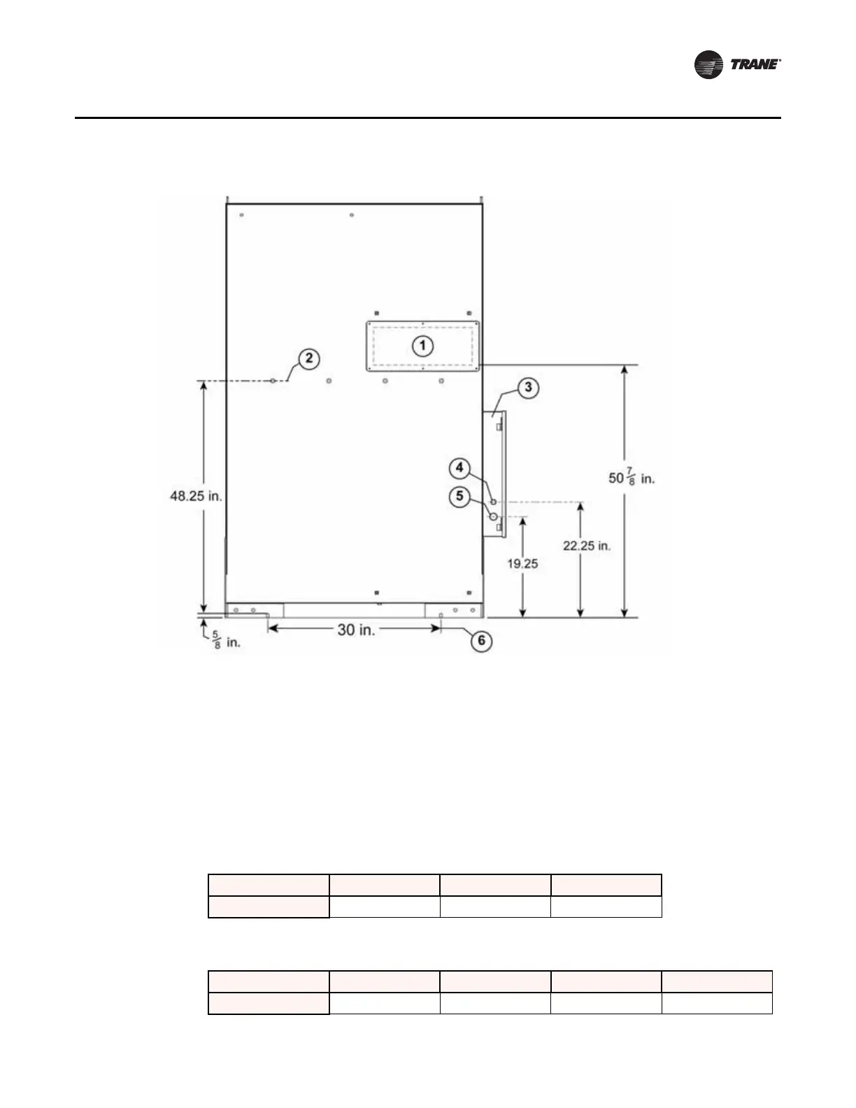
Figure 11. Rear view of E-Frame AFDH cabinet with dimension
1. Motor terminal access cover. Size of cutout is 8 in. x 17.5 in.
2. Centerline of Z-bracket mounting studs
3. UCP2 or CH531 / AdaptiView control box
4. 0.88 in. diameter cutout for 0.50 in. electrical conduit
5. 1.13 in. diameter cutout for 0.75 in. electrical conduit
6. Center-to-center spacing of the mounting notches for the angle iron bracket clips that will be
removed from the unit mounted starter being replaced and reused
Drive unit weights
Table 4. AFDH D-Frame unit weights
Table 5. AFDH E-Frame unit weights
D-Frame AFDH 302 Amp Drive 361 Amp Drive 443 Amp Drive
Unit Weight
757 lbs. 800 lbs. 872 lbs.
E-Frame AFDH 540 Amp Drive 590 Amp Drive 678 Amp Drive 730 Amp Drive
Unit Weight
1193 lbs. 1221 lbs. 1270 lbs. 1371 lbs.

Table of Contents

Other manuals for Trane CVHF

Related product manuals