EasyManua.ls Logo

Trane DFOA - Rigging; Suspension; Figure 9. Hanging assembly typical for Indoor Units; Figure 10. Plan View

Trane DFOA
94 pages
Print Icon
To Next Page IconTo Next Page
To Next Page IconTo Next Page
To Previous Page IconTo Previous Page
To Previous Page IconTo Previous Page
Loading...
MUA-SVX01A-EN • Direct-Fired Make-up Air 27
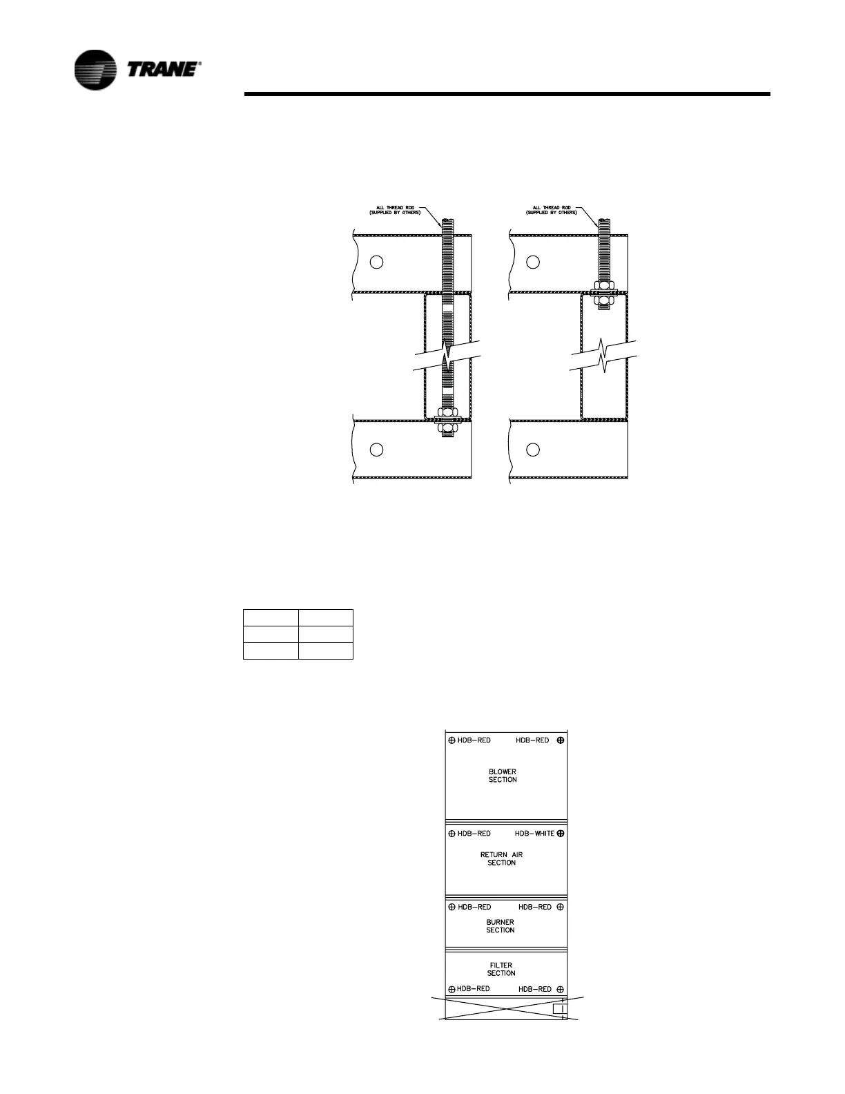
Rigging/ Suspension
Note 9. . Right hand shown, left hand opposite.
Note 10. 2. Unit configuration shown may not match specific configuration. Lifting points shown are typical per
section (section order is not relevant).
Figure 9. Hanging assembly typical for Indoor Units
Size A
109-118 6"
120-230 4 1/2"
Figure 10. Plan View
Denotes typical hanging
for unobstructed holes
Denotes typical hanging for
obstructed holes

Table of Contents

Other manuals for Trane DFOA

Related product manuals