EasyManua.ls Logo

Trane GRAA - Installation Location and Clearances; Proper Installation Location; Minimum Clearances to Combustibles

Trane GRAA
14 pages
Print Icon
To Next Page IconTo Next Page
To Next Page IconTo Next Page
To Previous Page IconTo Previous Page
To Previous Page IconTo Previous Page
Loading...
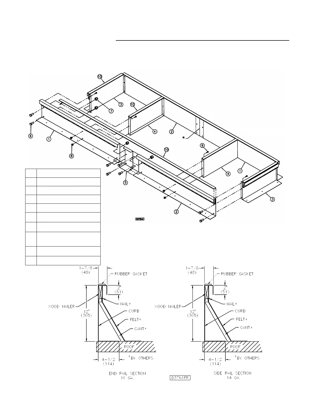
Figure 11 - Roof Curb Assembly *
* The roof curb and destined unit must be sealed completely to
prevent any water or air leakages (also see Figure 16).
Refer to Figures 17 and 18 for Ductwork Mounting Bracket
Assembly.
1 Curb Rail Assembly—Side (L.H.)
2 Curb Rail Assembly—Side (R.H.)
3 Curb Rail Assembly—End
4 Cross Brace—Curb
5 Connector—Curb
6
Bolt—3/8-16 x 1" LG. Hex Hd.
(16) Req’d.
7
3/8-16 x 1" LG. Hex Nyloc Nut
(16) Req’d.
8
1/4-14 x 5/8 LG. Hex Washer
Hd. Sheet Metal Screw Type
AB” (8) Req’d.
9
Screw—#10 x 5/8" LG. Pan Hd.
Type “AB” (8) Req’d.
10 Gasket
GRAA-IN-1 11

Other manuals for Trane GRAA

Related product manuals