EasyManua.ls Logo

Trane GRBA - Page 21

Trane GRBA
64 pages
Print Icon
To Next Page IconTo Next Page
To Next Page IconTo Next Page
To Previous Page IconTo Previous Page
To Previous Page IconTo Previous Page
Loading...
MUA-SVX003B-EN
21
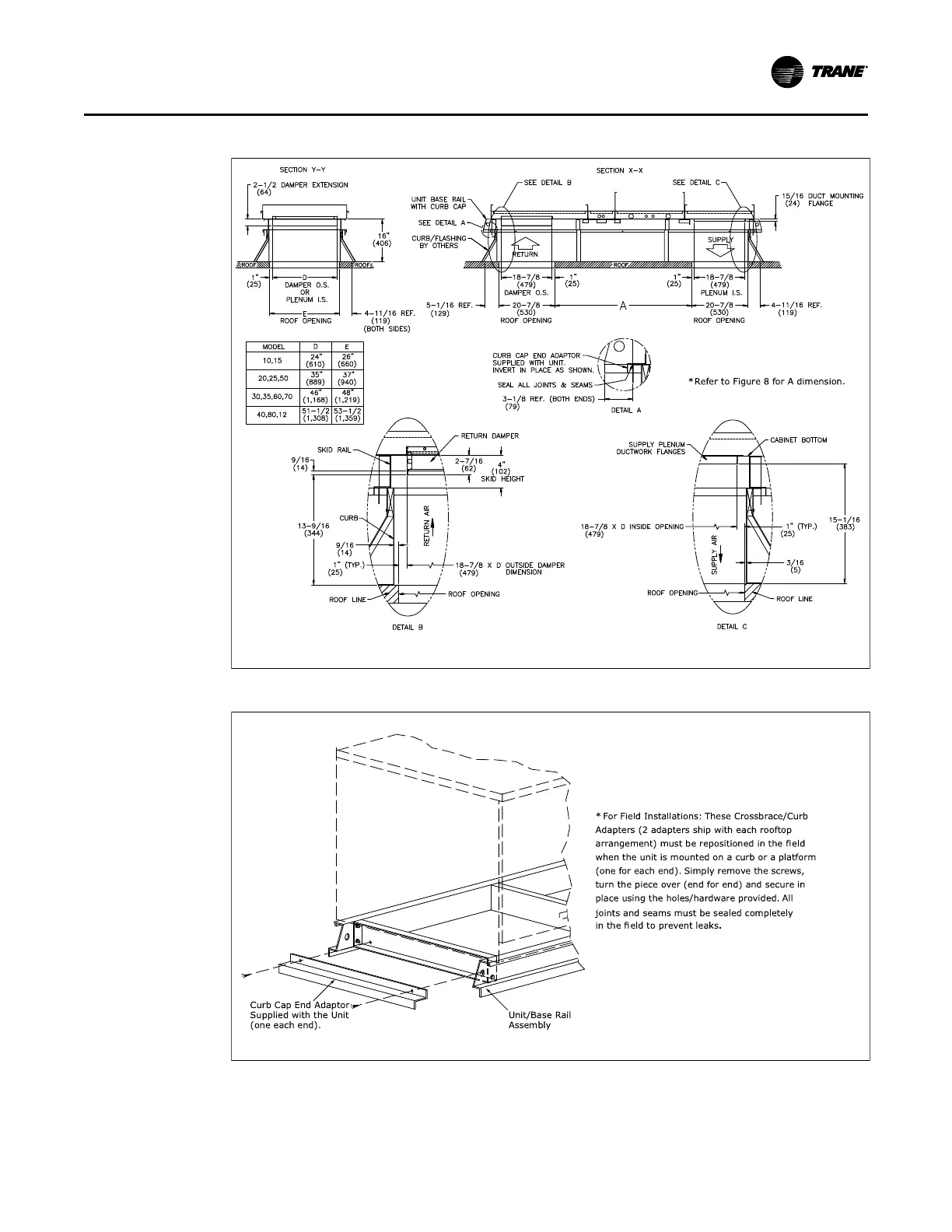
Figure 6. Roof Opening Dimensional Data
Figure 7. Unit/Curb End Rail Assembly
IInnssttaallllaattiioonn

Other manuals for Trane GRBA

Related product manuals